35 m² Chalet ∙ 3 Schlafzimmer ∙ 6 Gäste
Chalet in Aussois
6 Gäste3 Schlafzimmer1 Bad35 m²
Über diese Unterkunft
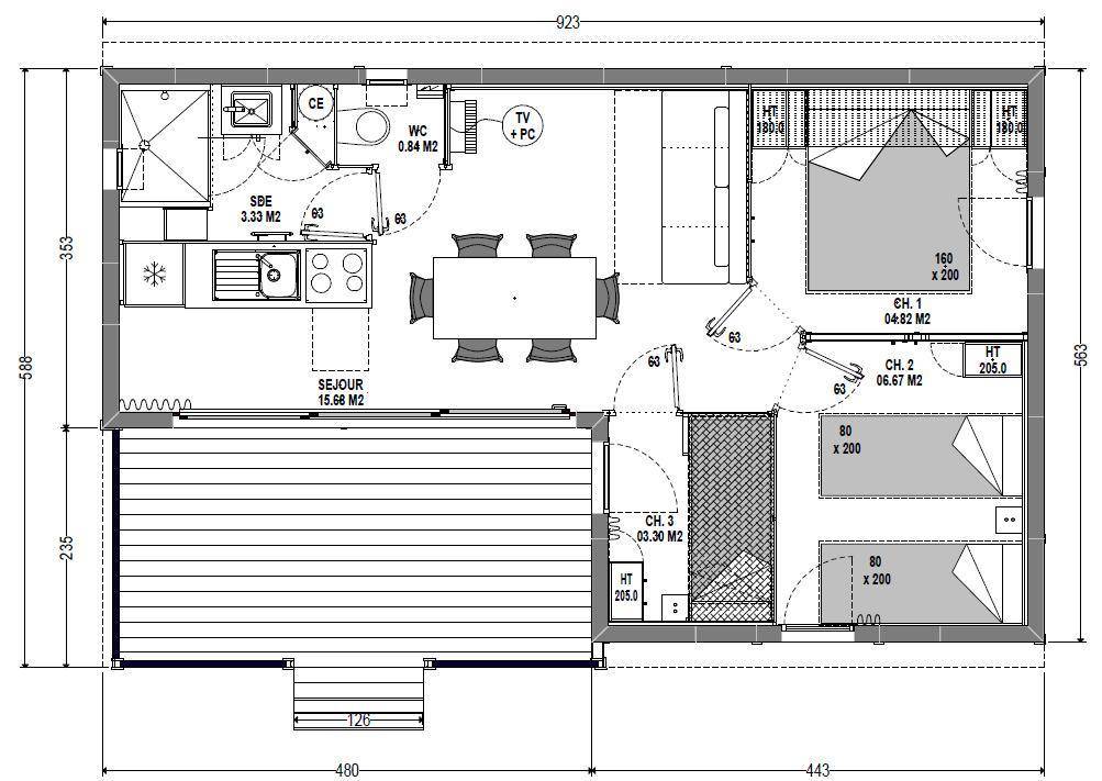
Der Campingplatz La Buidonnière d'Aussois liegt im Herzen des Nationalparks Vanoise und bietet Ihnen von jedem Standort aus einen atemberaubenden Blick auf die umliegenden Berge. Alle Annehmlichkeiten wie das Stadtzentrum und Geschäfte sind 800 m entfernt. Der Sessellift Grand Jeu ermöglicht Ihnen zahlreiche Wanderungen im Nationalpark. In der Nähe befinden sich mehrere Freizeitbereiche: ein Entspannungsbereich mit Schwimmbad, Whirlpool, Hammam und Sauna oder ein Freizeitzentrum für die Kleinsten mit Spielplatz und Pumptrack-Bereich für Mountainbikes, BMX und Roller. Fläche von ungefähr 35 m². Erdgeschoss. Orientierung : Süd. Wohnzimmer mit Klappschlafcouch (190). Schlafzimmer mit Doppelbett (160*200). 2 Schlafzimmer mit 2 Einzelbetten (80*200). Küche mit Wasserkocher, Kaffeemaschine, kleiner Backofen mit Mikrowellenfunktion, Dunstabzugshaube, 2 Induktionsherdplatten, Kühlschrank. Waschräume mit Haartrockner, Handtuchtrockner. Terrasse mit Gartentisch und -stühle.
Mietbedingung: der Hauptmieter muss mindestens 18 Jahre alt sein
Mietbedingung: der Hauptmieter muss mindestens 18 Jahre alt sein
Räume & Aufteilung
3 Schlafzimmer
1 Badezimmer
1 Küche
35 m² Wohnfläche
6 max. Gäste
Schlafmöglichkeiten
Schlafzimmer 1
x
Schlafzimmer 2
x x
Schlafzimmer 3
Schlafzimmer 4
Was diese Unterkunft bietet
WLAN
Parkplatz
Küche
Pool
Sauna
pool_shared
internet
internet_high_speed
microwave
cot















