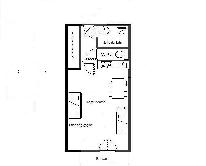
26 m² Studio ∙ 1 Schlafzimmer ∙ 3 Gäste
Studio in Aussois
3 Gäste1 Schlafzimmer1 Bad26 m²
Räume & Aufteilung
1 Schlafzimmer
1 Badezimmer
1 Küche
26 m² Wohnfläche
3 max. Gäste
Schlafmöglichkeiten
Schlafzimmer 1
x x
Schlafzimmer 2
Schlafzimmer 3
Was diese Unterkunft bietet
Küche
Balkon / Terrasse
microwave
cot
no_dogs
smoking_not_allowed
oven
children_allowed
heating
fridge







