Villa ∙ 5 Schlafzimmer ∙ 10 Gäste
Villa in Baveno
10 Gäste5 Schlafzimmer
Über diese Unterkunft
Grundriss der Einheit
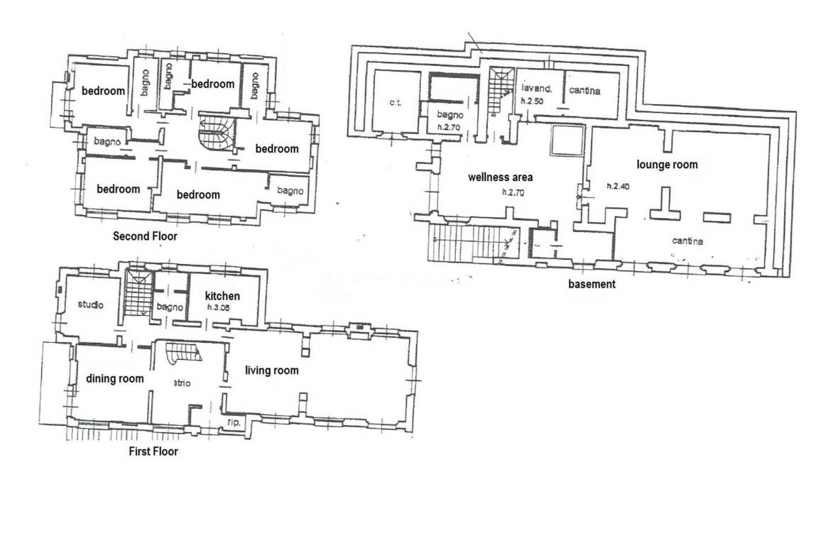
Die Villa umfasst circa 600 Quadratmeter auf 3 Etagen und bietet Platz für bis zu 10 Gäste in 5 Schlafzimmern und 7 Bädern.
Das Erdgeschoss präsentiert sich mit einem großen, hellen Wohnzimmer, das direkt auf eine vollständig ausgestattete Veranda mit Seeblick führt. Das Wohnzimmer ist mit hochwertigen Sofas und einem funktionsfähigen Kamin mit offenem Herd ausgestattet; ein zweites Wohnzimmer bietet Zugang zu einer ausgestatteten Terrasse mit Seeblick. Ein separates Esszimmer verfügt über einen großen runden Tisch unter einem Murano-Glaskronleuchter. Das Erdgeschoss umfasst zudem eine große, professionell ausgestattete Küche, ein Bad mit Dusche und ein TV-Zimmer mit komfortablem Doppelschlafsofa.
Das erste Obergeschoss beherbergt alle 5 Schlafzimmer mit Doppelbetten, jeweils mit Klimaanlage, Minibar und Flachbildfernseher mit Satellitenempfang. Das erste Schlafzimmer mit Seeblick ist mit einem Kingsize-Bett und einem en-suite Bad mit Dusche ausgestattet. Das zweite Schlafzimmer mit Seeblick verfügt über einen privaten Balkon und ein en-suite Bad mit Dusche. Das dritte Schlafzimmer mit Seeblick ist mit zwei zusammenstellbaren Einzelbetten und einem en-suite Bad mit Dusche ausgestattet. Das vierte Schlafzimmer mit Gartenblick verfügt über zwei zusammenstellbare Einzelbetten und ein en-suite Bad mit Dusche. Das fünfte Schlafzimmer mit Seeblick ist mit zwei Einzelbetten und einem zusätzlichen Einzelschlafsofa ausgestattet und verfügt über ein en-suite Bad mit Dusche.
Das Untergeschoss beherbergt einen vollständig klimatisierten Wellness- und Entspannungsbereich, der über Glastüren direkt vom Garten oder vom Wohnbereich der Villa zugänglich ist. Dieser Bereich verfügt über eine Whirlpool-Badewanne für 5 Personen, ein gut ausgestattetes Fitnessstudio und eine Entspannungs- und Teeecke mit Betten; ein vollständiges Bad mit Dusche ergänzt den Wellnessbereich. Ein Multifunktionsraum mit Natursteinwänden ist mit einem Fernseher, einem Spielzimmer mit Kinderspielzeug, Tischtennis, Tischfußball, mehreren Sofas und Sesseln sowie einem beeindruckenden Refektoriumstisch ausgestattet und bietet einen schönen Seeblick. Ein separater Wäscheraum im Untergeschoss ist mit einer Waschmaschine, einem Trockner und einem Bügeleisen ausgestattet.
Ausstattung
Die Küche verfügt über einen Geschirrspüler, eine Mikrowelle und alle erforderlichen Utensilien für die Zubereitung von Mahlzeiten. Die Klimaanlage ist auf der Schlafzimmeretage und dem Erdgeschoss vorhanden; die Heizung wird nach Verbrauch abgerechnet. Der private Garten, die private Terrasse und die ausgestattete Veranda bieten Außenbereiche mit Seeblick; ein Grill ist vorhanden. Ein Fernseher mit Satellitenempfang befindet sich im TV-Zimmer und in jedem der 5 Schlafzimmer. Der Wellnessbereich im Untergeschoss verfügt über eine Whirlpool-Badewanne für 5 Personen. Der Wäscheraum im Untergeschoss ist mit einer Waschmaschine, einem Trockner und einem Bügeleisen ausgestattet.
Weitere Informationen
Die Villa ist mit einer Mindestaufenthaltsdauer von 1 Woche buchbar; Samstag ist der Wechseltag. Der Check-in findet zwischen 16:00 und 19:00 Uhr statt; der Check-out ist bis 9:00 Uhr erforderlich. Eine späte Ankunft zwischen 19:00 und 21:00 Uhr ist auf Anfrage und mit Genehmigung des Eigentümers gegen eine Gebühr von 50 Euro möglich.
Eine rückerstattbare Kaution von 2.000 Euro wird bei der Ankunft eingezogen und bei der Abreise zurückgegeben, abzüglich etwaiger Schadensersatzforderungen. Die Touristensteuer beträgt 3,50 Euro pro Person pro Nacht und wird vor Ort bezahlt. Die Heizung wird nach Verbrauch zu einem Satz von 1,20 Euro pro Kubikmeter abgerechnet.
Der Mietpreis beinhaltet Endreinigung, tägliche Reinigung der Schlafzimmer und Bäder (Küche und Wohnbereiche sind nicht inbegriffen), Gartenpflege samstags um 9:00 Uhr, Wasser, Strom, Gas und Klimaanlage für Schlafzimmer- und Erdgeschoss. Am Ankunftstag (typischerweise Samstagabend gegen 19:30 Uhr) wird ein Willkommensessen mit italienischen Speisen von den Hausangestellten zubereitet und serviert. Ein Willkommenskorb mit Milch, Kaffee, Kuchen, Keksen, Toastbrot, Marmelade, Pasta, Pastasaucen, Müsli, Joghurt, Butter, Eiern, Fruchtsaft, Honig und frischem Obst wird bereitgestellt; frische Getränke mit Eiswürfeln stehen im Kühlschrank zur Verfügung.
Zusätzliche Dienstleistungen sind auf Anfrage zu ungefähren, änderungsfähigen Sätzen verfügbar: Lebensmitteleinkauf am Ankunftstag nach einer von den Gästen bereitgestellten Liste, zusätzliche tägliche Reinigung mit Geschirrspülen und Küchenreinigung, Wäscheservice mit Waschen, Trocknen und Bügeln durch die Hausangestellten, internationales Frühstücksbuffet mit Service und Reinigung, personalisierter Mittags- und Abendservice mit Koch, Servicepersonal und Reinigung. Bootsfahrten sind in verschiedenen Konfigurationen verfügbar, einschließlich Optionen für Skipper, Touren, verschiedene Bootstypen, Mahlzeiten und private Veranstaltungen. Weitere maßgeschneiderte Dienstleistungen auf Anfrage umfassen Privatkoch, Masseur, Friseur, Kosmetiker, persönlicher Einkaufsberater, Blumenlieferung, Yoga-Lehrer, Hubschrauber, Babysitter und Fotoshooting.
Die Villa liegt in der Gegend von Baveno und Stresa. Die Umgebung bietet Wassersport, Wandern, Radfahren, Golf, Bootsfahrten, Besichtigungen und Skifahren im Skigebiet Mottarone. Die Seilbahn Stresa-Mottarone fährt alle 20 Minuten vom Lido in Stresa ab und bietet auf dem Gipfel 360-Grad-Ausblicke auf 7 Seen und die italienischen Alpen. Die Borromäischen Inseln Isola Madre, Isola Bella und Isolino di San Giovanni, die botanischen Gärten von Villa Taranto und das Kloster Santa Caterina del Sasso sind mit der Fähre von Stresa aus leicht erreichbar. Der romantische Lago d'Orta liegt etwa 30 Minuten Fahrtzeit entfernt. Die CIN-Nummer der Immobilie ist IT103008C27XQKEYW2.
Die Villa umfasst circa 600 Quadratmeter auf 3 Etagen und bietet Platz für bis zu 10 Gäste in 5 Schlafzimmern und 7 Bädern.
Das Erdgeschoss präsentiert sich mit einem großen, hellen Wohnzimmer, das direkt auf eine vollständig ausgestattete Veranda mit Seeblick führt. Das Wohnzimmer ist mit hochwertigen Sofas und einem funktionsfähigen Kamin mit offenem Herd ausgestattet; ein zweites Wohnzimmer bietet Zugang zu einer ausgestatteten Terrasse mit Seeblick. Ein separates Esszimmer verfügt über einen großen runden Tisch unter einem Murano-Glaskronleuchter. Das Erdgeschoss umfasst zudem eine große, professionell ausgestattete Küche, ein Bad mit Dusche und ein TV-Zimmer mit komfortablem Doppelschlafsofa.
Das erste Obergeschoss beherbergt alle 5 Schlafzimmer mit Doppelbetten, jeweils mit Klimaanlage, Minibar und Flachbildfernseher mit Satellitenempfang. Das erste Schlafzimmer mit Seeblick ist mit einem Kingsize-Bett und einem en-suite Bad mit Dusche ausgestattet. Das zweite Schlafzimmer mit Seeblick verfügt über einen privaten Balkon und ein en-suite Bad mit Dusche. Das dritte Schlafzimmer mit Seeblick ist mit zwei zusammenstellbaren Einzelbetten und einem en-suite Bad mit Dusche ausgestattet. Das vierte Schlafzimmer mit Gartenblick verfügt über zwei zusammenstellbare Einzelbetten und ein en-suite Bad mit Dusche. Das fünfte Schlafzimmer mit Seeblick ist mit zwei Einzelbetten und einem zusätzlichen Einzelschlafsofa ausgestattet und verfügt über ein en-suite Bad mit Dusche.
Das Untergeschoss beherbergt einen vollständig klimatisierten Wellness- und Entspannungsbereich, der über Glastüren direkt vom Garten oder vom Wohnbereich der Villa zugänglich ist. Dieser Bereich verfügt über eine Whirlpool-Badewanne für 5 Personen, ein gut ausgestattetes Fitnessstudio und eine Entspannungs- und Teeecke mit Betten; ein vollständiges Bad mit Dusche ergänzt den Wellnessbereich. Ein Multifunktionsraum mit Natursteinwänden ist mit einem Fernseher, einem Spielzimmer mit Kinderspielzeug, Tischtennis, Tischfußball, mehreren Sofas und Sesseln sowie einem beeindruckenden Refektoriumstisch ausgestattet und bietet einen schönen Seeblick. Ein separater Wäscheraum im Untergeschoss ist mit einer Waschmaschine, einem Trockner und einem Bügeleisen ausgestattet.
Ausstattung
Die Küche verfügt über einen Geschirrspüler, eine Mikrowelle und alle erforderlichen Utensilien für die Zubereitung von Mahlzeiten. Die Klimaanlage ist auf der Schlafzimmeretage und dem Erdgeschoss vorhanden; die Heizung wird nach Verbrauch abgerechnet. Der private Garten, die private Terrasse und die ausgestattete Veranda bieten Außenbereiche mit Seeblick; ein Grill ist vorhanden. Ein Fernseher mit Satellitenempfang befindet sich im TV-Zimmer und in jedem der 5 Schlafzimmer. Der Wellnessbereich im Untergeschoss verfügt über eine Whirlpool-Badewanne für 5 Personen. Der Wäscheraum im Untergeschoss ist mit einer Waschmaschine, einem Trockner und einem Bügeleisen ausgestattet.
Weitere Informationen
Die Villa ist mit einer Mindestaufenthaltsdauer von 1 Woche buchbar; Samstag ist der Wechseltag. Der Check-in findet zwischen 16:00 und 19:00 Uhr statt; der Check-out ist bis 9:00 Uhr erforderlich. Eine späte Ankunft zwischen 19:00 und 21:00 Uhr ist auf Anfrage und mit Genehmigung des Eigentümers gegen eine Gebühr von 50 Euro möglich.
Eine rückerstattbare Kaution von 2.000 Euro wird bei der Ankunft eingezogen und bei der Abreise zurückgegeben, abzüglich etwaiger Schadensersatzforderungen. Die Touristensteuer beträgt 3,50 Euro pro Person pro Nacht und wird vor Ort bezahlt. Die Heizung wird nach Verbrauch zu einem Satz von 1,20 Euro pro Kubikmeter abgerechnet.
Der Mietpreis beinhaltet Endreinigung, tägliche Reinigung der Schlafzimmer und Bäder (Küche und Wohnbereiche sind nicht inbegriffen), Gartenpflege samstags um 9:00 Uhr, Wasser, Strom, Gas und Klimaanlage für Schlafzimmer- und Erdgeschoss. Am Ankunftstag (typischerweise Samstagabend gegen 19:30 Uhr) wird ein Willkommensessen mit italienischen Speisen von den Hausangestellten zubereitet und serviert. Ein Willkommenskorb mit Milch, Kaffee, Kuchen, Keksen, Toastbrot, Marmelade, Pasta, Pastasaucen, Müsli, Joghurt, Butter, Eiern, Fruchtsaft, Honig und frischem Obst wird bereitgestellt; frische Getränke mit Eiswürfeln stehen im Kühlschrank zur Verfügung.
Zusätzliche Dienstleistungen sind auf Anfrage zu ungefähren, änderungsfähigen Sätzen verfügbar: Lebensmitteleinkauf am Ankunftstag nach einer von den Gästen bereitgestellten Liste, zusätzliche tägliche Reinigung mit Geschirrspülen und Küchenreinigung, Wäscheservice mit Waschen, Trocknen und Bügeln durch die Hausangestellten, internationales Frühstücksbuffet mit Service und Reinigung, personalisierter Mittags- und Abendservice mit Koch, Servicepersonal und Reinigung. Bootsfahrten sind in verschiedenen Konfigurationen verfügbar, einschließlich Optionen für Skipper, Touren, verschiedene Bootstypen, Mahlzeiten und private Veranstaltungen. Weitere maßgeschneiderte Dienstleistungen auf Anfrage umfassen Privatkoch, Masseur, Friseur, Kosmetiker, persönlicher Einkaufsberater, Blumenlieferung, Yoga-Lehrer, Hubschrauber, Babysitter und Fotoshooting.
Die Villa liegt in der Gegend von Baveno und Stresa. Die Umgebung bietet Wassersport, Wandern, Radfahren, Golf, Bootsfahrten, Besichtigungen und Skifahren im Skigebiet Mottarone. Die Seilbahn Stresa-Mottarone fährt alle 20 Minuten vom Lido in Stresa ab und bietet auf dem Gipfel 360-Grad-Ausblicke auf 7 Seen und die italienischen Alpen. Die Borromäischen Inseln Isola Madre, Isola Bella und Isolino di San Giovanni, die botanischen Gärten von Villa Taranto und das Kloster Santa Caterina del Sasso sind mit der Fähre von Stresa aus leicht erreichbar. Der romantische Lago d'Orta liegt etwa 30 Minuten Fahrtzeit entfernt. Die CIN-Nummer der Immobilie ist IT103008C27XQKEYW2.
Räume & Aufteilung
5 Schlafzimmer
1 Küche
10 max. Gäste
Schlafmöglichkeiten
Schlafzimmer 1
Was diese Unterkunft bietet
WLAN
Parkplatz
Küche
TV / Fernseher
Waschmaschine
Balkon / Terrasse
Garten
Pool
fishing
dishwasher


































