205 m² Ferienhaus ∙ 6 Schlafzimmer ∙ 11 Gäste
Ferienhaus in Blokhus
Über diese Unterkunft
An der Zufahrt zum breiten Sandstrand in Blokhus liegt dieses große Ferienhaus zentral im Verältnis zum Stadtleben und zum Strand. Ein guter Ort für die große Familie mit herrlichem Blick auf den Strand und das Wasser von Obergeschoss des Hauses aus.
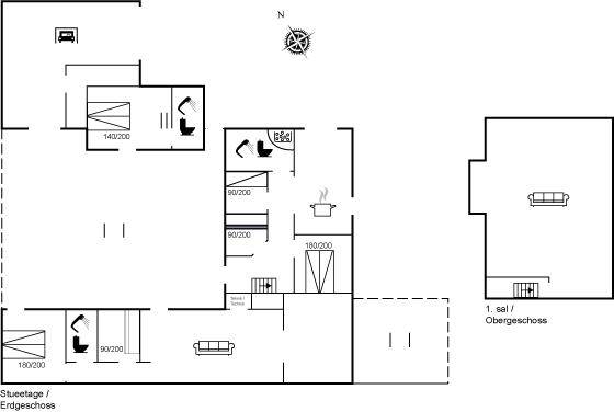
Das Haus ist in 3 Einheiten aufgeteilt (siehe Grundriss), so dass zwischen den Häusern ein ungestörter Innenhof entsteht, in dem man viele Stunden im Freien genießen kann.
Das Haus, das in den letzten Jahren einer umfangreichen Renovierung unterzogen wurde, präsentiert sich hell und einladend. Es gibt auch ein Gästehaus, das mit einem Schlafzimmer und eigenem Badezimmer ausgestattet ist.
Der Ferienort Blokhus bietet Restaurants, Cafés und Einkaufsmöglichkeiten sowie einen gemütlichen Marktplatz an.
Das Ferienhaus eignet sich für 11 Personen. Die Ferienunterkunft hat eine Wohnfläche von 205 m², ist 2-stöckig, und wurde 1928 gebaut. 2023 wurde die Ferienunterkunft teilweise renoviert. Haustiere dürfen nicht mitgebracht werden. Die Ferienunterkunft ist mit 2 Waschmaschinen ausgestattet. Tiefkühlmöglichkeit mit 60 Liter Nutzinhalt.
DraußenDie Ferienunterkunft liegt auf einem 486 m² großen Naturgrundstück. Die Entfernung zum Meer beträgt 100 m. Die nächste Einkaufsmöglichkeit liegt 240 m entfernt. In einem Abstand von 5000 m gibt es einen Golfplatz. Es steht ein geschlossenes Terrassenareal zur Verfügung. Es steht ein Grill zur Verfügung. Parkplatz auf dem Grundstück.
HobbyraumHobbyraum mit: Tischtennis.
SchlafverhältnisseDie Schlafplätze verteilen sich auf 6 Schlafräume. 6 Schlafplätze in Doppelbetten.1 Schlafplatz in einem Einzelbett. 4 Schlafplätze in Etagenbetten. 2 von diesen Schlafplätzen befinden sich im Gästehaus.
KücheDie Küche ist mit Kühlschrank ausgestattet. Außerdem gibt es 4 Keramik-Kochfelder, Umluftofen sowie Geschirrspüler.
WC und BadEs gibt 3 Badezimmer mit Duschnische und 3 Toiletten. Fußbodenheizung in 3 Badezimmern.
WhirlpoolEntspannen Sie sich im Innen-Durchlauf-Whirlpool für 2 Personen.
MultimedienIn der Ferienunterkunft gibt es 1 Fernseher mit Smart-TV. 2 Chromecasts. Keine Fernsehsender - nur Streaming. (Deutsche Fernsehprogramme können nur im Nebengebäude empfangen werden). Es steht kabellose Internetverbindung zur Verfügung.
Räume & Aufteilung
Schlafmöglichkeiten
Schlafzimmer 1
Schlafzimmer 2
Was diese Unterkunft bietet
Bewertungen
„The vacation at the holiday home: Dårlig info ved. varmesystemet, og vandvarmer i de 3 ejendomme, ikke god. The local office: I jeres skrivelser og info mat. står der ikke noget om åbningstider, det står kun på døren ind til kontoret. ikke smart, og bestem uprof.“
„The holiday home itself: Der var ikke noget Internet i huset ved ankomst Det blev udbedret efter henvendelse til Sol og Strand“
„Advice to other guests: Bestik og service er mangelfuld til 13personer.Køjesenge burde fjernes Ingen voksne mennesker kan sove i dem. Køleskabet har sit eget liv“
„The vacation at the holiday home: Vi var alle sikre på, at vi havde søgt - og bestilt sommerhus, hvor der måtte være hund, men det måtte der så ikke alligevel- og det overraskede os.“
„Advice to other guests: Er ikke helt egnet til maksimalt antal gæster, da anneks ikke virker egnet til at sove i. Lugter muggent og ikke ordentligt rengjort“
„Advice to other guests: Gut geignet, auch für kleinere Kinder. Durch die gute Raumaufteilung (nahezu drei Häuser) können Ruhe und Aktion nebeneinander stattfinden...“
„Advice to other guests: Ikke helt ideelt hvis der lægges på muligt samvær i forhold til sengepladser. Rengøring ved ankomst kunne godt have været bedre.“






















