30 m² Gîte ∙ 2 Gäste
Gîte in Bormes-les-Mimosas
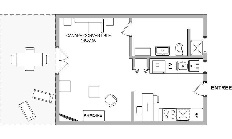
Räume & Aufteilung
Schlafmöglichkeiten
Schlafzimmer 1
Schlafzimmer 2
Was diese Unterkunft bietet
Bewertungen
„Nous avons passé un excellent séjour à Bormes les Mimosas dans le studio de Claire, orienté plein Sud avec son petit jardin, à deux pas des commerces et des plages! Et un accueil très chaleureux! C’était parfait, encore merci, nous reviendrons avec plaisir!“
„Nous avons bien aimé ce studio. Une seule critique: L'alaize du matelas est vraiment à changer, cela fait du bruit quand on bouge, c'est désagréable !Par contre, ce studio est bien placé, près des magasins, pas loin dela plage. Studio agréable !“
„Studio prêt de tout au calme bien aménagé. Ventilateur insuffisant lors de forte chaleur. beaucoup d animations à la faviére.merci pour votre sympathie“
„Nous avons passé une superbe semaine à Bormes Les Mimosas, le logement est idéalement situé à proximité de la plage et des commerces. L’accueil était chaleureux et le gîte était nickel, propre et bien équipé.“
„Un super accueil, une proximité du centre ville, plage, port.....Vraiment RASLoïc“



















