1000 m² Ferienhaus ∙ 12 Schlafzimmer ∙ 24 Gäste
Ferienhaus in Bredebro
Über diese Unterkunft
Diese große und geräumige Ferienunterkunft liegt in einem ruhigen Feriengebiet - nicht weit vom Wattenmeer entfernt. Diese Ferienunterkunft eignet sich perfekt für mehrere Familien oder Paare, die einen gemeinsamen Urlaub unter ein und demselben Dach verbringen möchten.
EinrichtungDas Ferienhaus eignet sich für 24 Personen. Die Ferienunterkunft hat eine Wohnfläche von 1000 m², ist 3-stöckig, und wurde 1950 gebaut. 2004 wurde die Ferienunterkunft teilweise renoviert. Es ist erlaubt 2 Haustiere mitzubringen. Fußbodenheizung in allen Klinkerböden. Die Ferienunterkunft ist mit Waschmaschine ausgestattet. Wäschetrockner. Tiefkühlmöglichkeit mit 250 Liter Nutzinhalt. Für die jüngsten Feriengäste sind 3 Kinderhochstühle vorhanden. Wickeltisch.
DraußenDie Ferienunterkunft liegt auf einem 2000 m² großen Naturgrundstück.Die Entfernung zum Wattenmeer beträgt 500 m. Die nächste Einkaufsmöglichkeit liegt 900 m entfernt. Es steht ein 70 m² Terrassenareal zur Verfügung. Schaukel. Sandkasten. Rutsche. Es steht ein Grill zur Verfügung. Parkplatz auf dem Grundstück.
SwimmingpoolIm Swimmingpool können sich Jung und Alt gemeinsam Vergnügen. Der Swimmingpool misst bis zu 4,5 m in der Breite, 25 m in der Länge und die Tiefe variiert von 1,2 m bis zu 1,9 m. Fußbodenheizung in der Swimmingpool-Abteilung.
HobbyraumHobbyraum mit: Billard. Tischtennis. Tischfußball.
SchlafverhältnisseDie Schlafplätze verteilen sich auf 12 Schlafräume. 24 Schlafplätze in Doppelbetten. Ferner stehen 3 Kinderbetten zur Verfügung.
KücheDie Küche ist mit amerikanischem Kühlschrank ausgestattet. Außerdem gibt es 8 elektrische Kochplatten, 2 Backöfen, 2 Umluftöfen, Mikrowelle sowie 2 Geschirrspüler.
WC und BadEs gibt 5 Badezimmer mit Duschnische und 7 Toiletten, davon 2 Gästetoiletten.. Fußbodenheizung in 3 Badezimmern. Es steht eine Sauna zur Verfügung in der Sie sich so richtig entspannen können.
WhirlpoolEntspannen Sie sich im Innen-Standwasser-Whirlpool für 6 Personen.
MultimedienIn der Ferienunterkunft gibt es einen Fernseher. DVD-Player. Stereoanlage. CD-Player. 1-3 dänische Fernsehsender. Mindestens 4 deutsche Fernsehsender. Es steht kabellose Internetverbindung zur Verfügung.
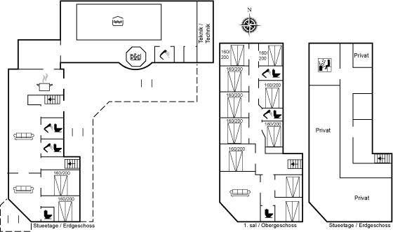
Räume & Aufteilung
Schlafmöglichkeiten
Schlafzimmer 1
Schlafzimmer 2
Was diese Unterkunft bietet
Bewertungen
„Advice to other guests: Rengøring af gulv. Gulvet var støvsuget men ikke vasket. Efter kort tid uden fodtøj var strømperne helt sorte så rengøring af gulvene var i realiteten ikke eksisterende. Tros det har vi betalt for en rengøring uden refusion, hvad vi ikke mener er rimelig. Der var ikke varmt vand i bruserne i hele tiden. I stuen på første sal var der kun 19% varmt da een af radiatoren var blokeret ned strips The vacation at the holiday home: Gulvet var ikke ren. for at skrive det lige ud på jysk MØJBESKIDT The local office: Jeg ringede til udlejeren angående varme i huset og fik god vejledning af ham. Men her fik vi kritik af bureau det er dem vi skulle henvende os til“
„The vacation at the holiday home: Forventninger ud fra beskrivelsen af huset og dens inventar blev langt fra opfyldt. Når man skriver der er spa, så forventer man der er spa. Når man skriver ser er bordtennis, pool mm så forventer man at disse ting er i orden, det var de ikke! The local office: Ingen imødekommenhed ift til de mangler der var. Kig selv huset efter inden I annoncerer med aktivitet og muligheder i huset! Departure and follow up: Vi er ikke blevet mødt i vores frustration! Når der er først kommer varme i huset om lørdagen efter vi tjekkede ind torsdag og man ikke bliver kompenseret for den mangelvare (læs: Der var ingen olie på fyret!) Så synes jeg ikke jeg har lyst til at leje hus hos sol og strand igen…“
„Advice to other guests: Das Haus hat Einzelbetten The vacation at the holiday home: Es gab kaum Beschreibungen zu technischen Geräten. Informationen zur Mülltrennung irreführend bzw. Widersprüchlich“
„The vacation at the holiday home: Jeg Kan ikke lige se hvor jeg har svaret jeg ikke er tilfreds? ? Jeg er tilfreds“
„Advice to other guests: Die Poollandschaft ist super. Die Sauberkeit im Haus könnte besser sein und an den meisten Fenstern befinden sich Stockflecken. Die Küchen ist gut ausgestattet und hat einen modernen Side by Side Kühlschrank mit integrierter Eiswürfelnmaschine. Es ging leider nur in 2 von 4 Duschen im Obergeschoss das warme Wasser. Für ein große Gruppen super, wenn die Mängel behoben sind. The vacation at the holiday home: Wir haben keine Informationen gefunden. The local office: Schwer zu erreichen Departure and follow up: Wir haben eine email geschrieben, dass wir unzufrieden war und Fotos von Mängeln mit geschickt. Diese würde nicht sehr freundlich beantwortet“
„Prior to the vacation at the holiday home: Das Haus hat alles geboten wie beschrieben. Allerdings ist es sehr in die Jahre gekommen und schreit förmlich nach eine Renovierung und Modernisierung. The vacation at the holiday home: Bei Ankunft war eine Spülmaschine verstopft und wurde von uns gereinigt. Das meiste Geschirr war verschmutzt im Schrank. Die Gefrierseite von der Kühlkombi war defekt. In einem Badezimmer konnte man nur kalt duschen. Der Whirlpool verlor Wasser und konnte kaum genutzt werden. Die Stühle verloren viel Leder, weil es porös ist. In einem Schlafzimmer war an der Decke Schimmel. The local office: Wir haben keine Hilfe benötigt. Departure and follow up: War alles eindeutig beschrieben und so haben wir es auch ausgeführt. Cleanliness: Die Ursache war, es war einfach in einigen Räumen nicht ordentlich geputzt. The holiday home itself: Wie vorher schon beschrieben. Es müsste modernisiert und renoviert werden.“
„The vacation at the holiday home: -Der Haken für die Haustür um die Tür einzuhaken muss unbedingt gekennzeichnet werden! Jemand von uns ist darüber gefallen und hat sich Prellungen und Schürfungen im Gesicht und an den Händen zugezogen -Es waren viele Stühle im Außenbereich defekt -Toiletten nicht abschließbar -Toilettenbrille defekt -Mülleimer waren zu 75% voll -Im Pool fehlt am tiefen Ende eine Abdeckung am Boden, wodurch dort ein gefährliches Loch ist -Fußbodenheizung im Esszimmer viel zu warm -Handläufe an jeglichen Treppen fehlen, gerade für ältere und Kinder sehr gefährlich -Kühlschrank zu klein -Treppe im hinteren Bereich des Haus nicht abgesperrt, obwohl der Zugang unten zum Keller dicht ist - Gefahr für Kinder! -Wasserbecken im Waschraum haben sich nach Regen gefüllt und unerträglich gestunken Cleanliness: Die Mülleimer waren zu 75% voll Vielen Spinnen und Spinnweben Garten war nicht aufgeräumt Grill war nicht sauber“
„Advice to other guests: Slidt men der er hvad der skal være havde en god ferie i ballum“
„The vacation at the holiday home: Die Einrichtung war teilweise beschädigt und nicht nutzbar.“
„The vacation at the holiday home: Das lag wohl weniger an der Komunikation von Sonne und Strand die war gut, es lag am Zustand des Ferienhauses. Da sollte einiges mit dem Eigentümer geklärt werden. The local office: Ich habe per Mail am ersten Tag mitgeteilt, das dass Ferienhaus nicht sauber ist. Daraufhin sollte jemand zur Behebung vorbei kommen, das ist aber nicht geschehen.“
„Advice to other guests: Vi var i huset i uge 7 og det var koldt da vi kom. Poolen var ikke varmet op. Huset virkede slidt og det var skuffende i forhold til de billeder der var lagt ud. The vacation at the holiday home: Vi lejede huset pga. poolen. Den var ikke opvarmet da vi kom om fredagen, og var først varm nok til brug om onsdagen. Det var meget skuffende. Ejer forsætte at varme den op så hurtigt som muligt men det tog alt for meget tid. Huset var generelt slidt. Der var dårligt lys da mange pærer ikke virkede. Varmen i huset var svær at regulere og det var enten for koldt eller for varmt. Rengøringen var ikke imponerende. Den ene opvasker virkede ikke. The local office: Bureauet kunne ikke hjælpe med fejlene omkring varme og opvarmning. Det var ejer det stod for det. Bureauet sagde at huset var opvarmet da vi kom, og det var det ikke. Departure and follow up: Afregning er ikke lavet ud fra de værdier vi har aflæst. Vi har billeder som dokumentation for målerstand.“
„The vacation at the holiday home: Das Haus ist sehr in die Jahre gekommen. Küche unzureichend ausgestattet. Ofen wackelte. Zimmer mit Teppich nicht ausreichend gereinigt. Whirlpool undicht, dadurch höhere Wasser kosten. Plane Pool porös. Spinnenweben überall im Haus (sehr sichtbar).“
„The vacation at the holiday home: Es wurde ein verschmutzter Slip in einem Schlafzimmer vorgefunden. Die Anzahl der Gläser müsste erhöht werden, es gab z. B. nicht ausreichend Schnapsgläser. Mülltrennung ist schwierig, wenn keine entsprechend beschrifteten Mülleimer im Haus vorhanden sind. Die Pfannen in der Küche sind nicht mehr ausreichend beschichtet, sodass sie nicht gut zu verwenden waren. Wir fanden keine Anleitungen zur Nutzung des Whirlpools oder der Sauna.“
„The vacation at the holiday home: Rengøringen kunne gøres bedre. Der stod en kaffe maskine men ikke noget om hvad det kostede at bruge den. Ingen madrasser i babysengene.“
„The vacation at the holiday home: Jeg har reklameret over opholdet, huset var meget slidt. Poolen var beskidt med alger op ad siderne og sand i bunden. Jacuzzi, opvaskemaskine, tørretumbler, kaffemaskine og motionsmaskiner var i stykker. Brandalarmer var taget ned, ledninger hang ned fra loftet med pærer uden lampeskærm. Generelt var huset voldsomt misvedligeholdt. The local office: Vi blevet lovet ny opvaskemaskine og tørretumbler, men det fik vi ikke. Departure and follow up: Jeg er utilfreds med behandlingen af min reklamation, forventede en bedre behandling, i forhold til de fejl og mangler der selvfølgelig prægede vores ferie.“








































