100 m² Ferienhaus ∙ 4 Schlafzimmer ∙ 7 Gäste
Ferienhaus in Hals
Über diese Unterkunft
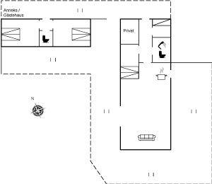
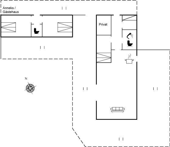
Dieses schön renovierte Ferienhaus liegt ungestört auf einem Grundstück, das auf der einen Seite an einen Wald angrenzt. Hier können Sie den Urlaub in ruhiger Umgebung genießen und der schöne Strand liegt nicht weit entfernt. Neben dem Haus liegt ein großes Gästehaus, 2017 erbaut, das mit 2 Schlafzimmer eingerichtet ist – ganz ideal für Teenager oder für die Großeltern. Die große Terrasse verbindet das Sommerhaus und das Gästehaus. Das Haus liegt in einem Gebiet mit guten Aktivitätsmöglichkeiten – Besuchen Sie z. B. den Ferienort Hals, wo es im Sommerhalbjahr eine gute Auswahl an Cafés und Restaurants gibt.
Das Ferienhaus eignet sich für 7 Personen. Die Ferienunterkunft hat eine Wohnfläche von 100 m² und wurde 1973 gebaut. 2018 wurde die Ferienunterkunft teilweise renoviert. Es ist erlaubt 1 Haustier mitzubringen. Die Ferienunterkunft ist mit energiesparender Wärmepumpe ausgestattet. Fußbodenheizung in allen Klinkerböden. Die Ferienunterkunft ist mit Waschmaschine ausgestattet. Tiefkühlmöglichkeit mit 40 Liter Nutzinhalt. Es gibt außerdem einen Kaminofen. Für die jüngsten Feriengäste ist 1 Kinderhochstuhl vorhanden.
DraußenDie Ferienunterkunft liegt auf einem 1093 m² großen Naturgrundstück. Die Entfernung zum Meer beträgt 500 m. Die nächste Einkaufsmöglichkeit liegt 4000 m entfernt. In einem Abstand von 3700 m gibt es einen Golfplatz. Es steht ein 70 m² Terrassenareal zur Verfügung. Lagerfeuerstelle.Es beteht die Möglichkeit das Essen in der Außenküche zuzubereiten. Es steht ein Grill zur Verfügung. Parkplatz auf dem Grundstück.
SchlafverhältnisseDie Schlafplätze verteilen sich auf 4 Schlafräume. 6 Schlafplätze in Doppelbetten.1 Schlafplatz in einem Einzelbett.- 2 von diesen Schlafplätzen befinden sich im Gästehaus.
KücheDie Küche ist mit Kühlschrank ausgestattet. Außerdem gibt es 4 Induktions-Kochzonen, Umluftofen sowie Geschirrspüler.
WC und BadEs gibt 1 Badezimmer mit Duschnische und 2 Toiletten, davon 1 Gästetoilette. Fußbodenheizung in 1 Badezimmer.
MultimedienIn der Ferienunterkunft gibt es einen Fernseher mit Smart-TV ohne Antennenanschluss - TV-Programme nur via Internet. DVD-Player. Es steht kabellose Internetverbindung zur Verfügung.
Räume & Aufteilung
Schlafmöglichkeiten
Schlafzimmer 1
Schlafzimmer 2
Was diese Unterkunft bietet
Bewertungen
„Cleanliness: Es war nicht so sauber wie erwartet“
„The vacation at the holiday home: Couch und Sessel nichts als Sperrmüll Kein deutsches Fernsehen Rest war ok… The local office: Waren am ersten Tag zur Hilfe da, aber zum Thema Couch wurde nichts getan und anstelle des defekten Gasgrills gab es Mini Holzkohlengrill Cleanliness: Geschirr und Besteck waren noch dreckig vom Vorgänger The holiday home itself: Schön aber in die Jahre gekommen und nicht so toll wie die Bilder suggerieren“
„The vacation at the holiday home: Einige Dinge waren in der Beschreibung sehr allgemein gehalten. Regler für die Fußbodenheizung mussten wir suchen, kurzer konkreter Hinweis wäre toll. Oder, dass der Gefrierschrank sich im Schuppen befindet.“
„The vacation at the holiday home: Der Fernseher ging nicht :(“
„The local office: Wir haben das Büro nicht benötigt. Cleanliness: Der Grill war nicht nutzbar. In der Couch und in den Sesseln war es unter den Auflagen sehr schmutzig. Ansonsten war es in Ordnung.“
„The vacation at the holiday home: Es gab keinen Grundriss, die Möbel sind zum Teil stark abgenutzt, die Terrassenmöbel sind wenig praktisch, ordentliche Liegestühle und Stühle fehlen, schimmelige Matratze. Aber tolles Grundstück, gute Lage, schöner Annex.“



































