127 m² Ferienhaus ∙ 4 Schlafzimmer ∙ 8 Gäste
Ferienhaus in Hals
Über diese Unterkunft
Dieses große und geräumige Ferienhaus liegt im ruhigen Ferienhausgebiet Mikkelmark - in der Nähe vom kinderfreundlichen Strand und den Einkaufsmöglichkeiten im Ferienort Hou.
EinrichtungDas Ferienhaus eignet sich für 8 Personen. 2 der Schlafplätze eignen sich jedoch nur für größere Kinder (4-11 Jahre). Die Ferienunterkunft hat eine Wohnfläche von 127 m² und wurde 1989 gebaut. 2016 wurde die Ferienunterkunft teilweise renoviert. Es ist erlaubt 1 Haustier mitzubringen. In der Ferienunterkunft ist eine energiesparender Luft zu Luft Wärmepumpe installiert. Die Ferienunterkunft ist mit Waschmaschine ausgestattet. Tiefkühlmöglichkeit mit 60 Liter Nutzinhalt. Es gibt außerdem einen Kaminofen.
DraußenDie Ferienunterkunft liegt auf einem 1339 m² großen Naturgrundstück. Die Entfernung zum Meer beträgt 1000 m. Die nächste Einkaufsmöglichkeit liegt 1000 m entfernt. Es steht ein offenes Terrassenareal zur Verfügung. Es steht ein offenes Terrassenareal zur Verfügung. Es steht ein Grill zur Verfügung. Parkplatz auf dem Grundstück.
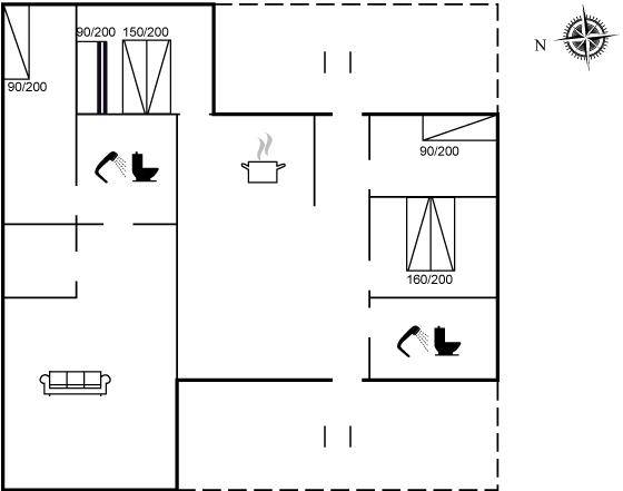
SchlafverhältnisseDie Schlafplätze verteilen sich auf 4 Schlafräume. 4 Schlafplätze in Doppelbetten. 2 Schlafplätze in Einzelbetten. 2 Schlafplätze in einem Etagenbett.
KücheDie Küche ist mit Kühlschrank ausgestattet. Außerdem gibt es 4 Keramik-Kochfelder, Umluftofen, Mikrowelle sowie Geschirrspüler.
WC und BadEs gibt 2 Badezimmer mit Duschnische und 2 Toiletten. Fußbodenheizung in 2 Badezimmern.
MultimedienIn der Ferienunterkunft gibt es einen Fernseher.1 Chromecast.1 Bluetooth-Lautsprecher. Mindestens 4 dänische Fernsehsender. 1-3 schwedische Fernsehsender. 1-3 norwegische Fernsehsender. 1-3 deutsche Fernsehsender. Es steht kabellose Internetverbindung zur Verfügung.
Räume & Aufteilung
Schlafmöglichkeiten
Schlafzimmer 1
Schlafzimmer 2
Was diese Unterkunft bietet
Bewertungen
„The holiday home itself: Die Unterlagen der Betten möchte ich als etwas unsauber bezeichnen. Das ist der einzige Mangel.“






















