27 m² Ferienwohnung ∙ 1 Schlafzimmer ∙ 5 Gäste
Ferienwohnung in Hauteluce
5 Gäste1 Schlafzimmer1 Bad27 m²
Über diese Unterkunft
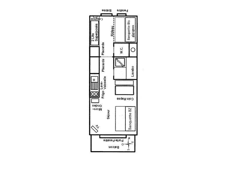
Die Residenz Mont Blanc C liegt 200 Meter von den Geschäften des Bahnhofs Les Saisies entfernt. Das Dorfzentrum liegt 250 Meter vom Gebäude entfernt. Die Residenz ist ideal gelegen und bietet Ihnen direkten Zugang zum Tourismusbüro und zu den Aktivitäten. Fläche von ungefähr 24-27 m² enthält 7 m² unter 1,80 m. 3te Etage. Orientierung : Süd. Wohnzimmer mit BZ-Sofas, TV. offener Schlafbereich mit einfache Klappschlafcouch, 2 Stockbetten. Kochnische mit Kaffeemaschine, Backofen, Toaster, Geschirrspülmaschine, Mikrowellenherd. Waschräume mit Dusche. separates WC. Balkon. Die oberen Betten sind nicht für Kinder unter 6 Jahren geeignet.
Mietbedingung: der Hauptmieter muss mindestens 18 Jahre alt sein
Mietbedingung: der Hauptmieter muss mindestens 18 Jahre alt sein
Räume & Aufteilung
1 Schlafzimmer
1 Badezimmer
1 Küche
27 m² Wohnfläche
5 max. Gäste
Schlafmöglichkeiten
Schlafzimmer 1
x
Schlafzimmer 2
x x
Schlafzimmer 3
Schlafzimmer 4
Was diese Unterkunft bietet
Parkplatz
Küche
TV / Fernseher
Balkon / Terrasse
dishwasher
tv
microwave
no_dogs
smoking_not_allowed
oven













