132 m² Ferienhaus ∙ 4 Schlafzimmer ∙ 8 Gäste
Ferienhaus in Hirtshals
Über diese Unterkunft
Schön gelegenes Ferienhaus in Kjul zwischen Hirtshals und Tversted, nahe einem schönen Badestrand und herrlicher Natur, mit der Möglichkeit für Spaziergänge mit dem Hund. Fährverbindungen von Hirtshals nach Norwegen und zu den Färöern. Das Haus ist sowohl für Familien als auch für Paare geeignet.
EinrichtungDas Ferienhaus eignet sich für 8 Personen sowie 1 Kleinkind bis zu 3 Jahren. Die Ferienunterkunft hat eine Wohnfläche von 132 m² und wurde 1989 gebaut. 2018 wurde die Ferienunterkunft renoviert. Es ist erlaubt 1 Haustier mitzubringen. Die Ferienunterkunft ist mit Waschmaschine ausgestattet. Tiefkühlmöglichkeit mit 30 Liter Nutzinhalt. Es gibt außerdem einen Kaminofen. Für die jüngsten Feriengäste ist 1 Kinderhochstuhl vorhanden.
DraußenDie Ferienunterkunft liegt auf einem 1263 m² großen Naturgrundstück. Die Entfernung zum Meer beträgt 240 m. Die nächste Einkaufsmöglichkeit liegt 5000 m entfernt. In einem Abstand von 1500 m gibt es einen Golfplatz. Es steht ein offenes Terrassenareal zur Verfügung. Geräteraum. Schaukel. Sandkasten. Die Entfernung zu einem Spielplatz beträgt 200 m. Es steht ein Grill zur Verfügung. Es ist ein Ladestecker für Elektroautos installiert. CEE Stecker. Mit einer Ladeleistung von 22 kW. Parkplatz auf dem Grundstück.
SwimmingpoolIm Swimmingpool können sich Jung und Alt gemeinsam Vergnügen. Der Swimmingpool misst bis zu 3,5 m in der Breite, 7,5 m in der Länge und bis zu 1,5 m in der Tiefe. Die Wassertemperatur liegt zwischen 24 und 28° C.
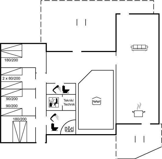
SchlafverhältnisseDie Schlafplätze verteilen sich auf 4 Schlafräume. 4 Schlafplätze in Doppelbetten. 4 Schlafplätze in Einzelbetten. Ferner steht ein Kinderbett zur Verfügung.
KücheDie Küche ist mit Kühlschrank ausgestattet. Außerdem gibt es 4 Keramik-Kochfelder, Umluftofen, Mikrowelle sowie Geschirrspüler.
WC und BadEs gibt 2 Badezimmer mit Dusche und 2 Toiletten Es steht eine Sauna zur Verfügung in der Sie sich so richtig entspannen können.
WhirlpoolEntspannen Sie sich im Innen-Durchlauf-Whirlpool für 2 Personen. Im Außen-Standwasser-Whirlpool für 6 Personen können Sie sowohl die Unterwassermassage als auch den Aufenthalt im Freien genießen.
Multimedien1 Smart-TV.1 Chromecast. Fernsehen via Streaming. Radio.1 Bluetooth-Lautsprecher. Surround-Anlage. Mindestens 4 dänische Fernsehsender. Mindestens 4 deutsche Fernsehsender. Es steht kabellose Internetverbindung zur Verfügung.


































