72 m² Ferienhaus ∙ 3 Schlafzimmer ∙ 6 Gäste
Ferienhaus in Klitmøller
Über diese Unterkunft
In ruhiger Umgebung - nur 150 m von Klitmøllers bestem Badestrand entfernt liegt dieses geschmackvoll eingerichtete Ferienhaus auf einem 870 m² großen Naturgrundstück mit Kiefern, Fichten und Hagebuttenbüsche. Die Entfernung zum Supermarkt beträgt 1000 m.
Das Ferienhaus ist für 6 Personen geeignet, wurde über die Jahre ausgebaut und renoviert und hat eine Wohnfläche von 72 m². Bei der letzten größeren Renovierung wurde das Haus gedämmt, es wurden wartungsfreundliche Böden verlegt, es wurde ein neuer Herd installiert und die Küchenausstattung u. a. m. wurde modernisiert.
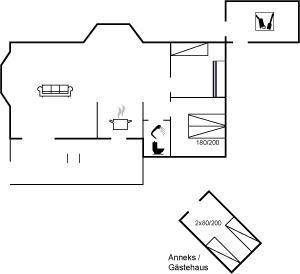
Die Schlafplätze verteilen sich auf 2 Zimmer; 1 mit Doppelbett und 1 mit
1 Einzelbett und Etagenbett. Darüber hinaus steht ein Gästehaus von 9 m² zur Verfügung, das mit 2 Einzelbetten (können zu einem Doppelbett zusammengeschoben werden) und einem offenen Obergeschoss eingerichtet ist.
Im Wohnzimmer finden Sie einen Kaminofen. Die Küche ist mit Kühlschrank, Gefrierschrank mit einem Nutzinhalt von 40 Liter, Herd mit Ceranfeld und Backofen ausgestattet. Es gibt 1 Badezimmer mit Duschnische und Toilette.
Im Ferienhaus gibt es einen Fernseher mit mehrere deutsche und mindestens 4 dänische Fernsehsender, DVD-Player, Radio, CD-Player und WLAN.
Im geräumigen Schuppen finden Sie Gartenmöbel, Mikrowelle und Grill.
Das Haus ist von 3 Terrassen umgeben auf denen Sie die Stunden im Freien genießen können.
Eine Solaranlage bläst warme Luft in das Haus, wenn die Sonne scheint (abschaltbar). Außerdem wurde das Haus 2021 an die öffentliche Kanalisation angeschlossen.
Es ist erlaubt, 1 Haustier mitzubringen.
Räume & Aufteilung
Schlafmöglichkeiten
Schlafzimmer 1
Schlafzimmer 2
Was diese Unterkunft bietet
Bewertungen
„The vacation at the holiday home: Vi havde simpelthen ikke lyst til at være der og bruge vores ferie der. Der var på ingen måde lækkert. Så vi afleverede nøglen 10 minutter efter ankomst. The local office: Vi blev slet ikke spurgt ind til hvorfor vi havde afleveret nøglen, hjælp til at finde er andet sted eller lignende. De virkede desværre helt ligeglade. Departure and follow up: Ingen opfølgning overhovedet. Cleanliness: Der var på ingen måde indbydende. Virkede ubehageligt. Vi havde ikke lyst til at være der“
„Prior to the vacation at the holiday home: Habe ich das?“
„Cleanliness: Der var fluer i vindues karmene. Hundegård i lænestolen. Anneks var beskidt. Ketchup på spisebord stolene. Spindelvæv på nogle lamper. The holiday home itself: Ønske om opvaskemaskine, så ville al service blive rent til næste gæst, vi fik nogle ting ud af skabene, som vi måtte vaske op inden brug.“
„The vacation at the holiday home: Ringede til sol og strand da der var meget støvet og på badeværelset var der mange spindelvæv, samt udsugning var hel lodden. Synes huset trænger til en hovedrengøring og udskiftning af nogle rullegardiner der var nusset og ikke virkede The local office: Ringede ang rengøring og fik af vide jeg bare skulle aflevere det i samme stand, altså med støv Departure and follow up: Har ikke fået slutregnskab endnu The holiday home itself: Det var ikke så rent som ønsket“
„Advice to other guests: Genügend Geduld zum Bedienen der Rollos aufbringen und ebenso zum Einschalten des Fernsehens“





















