120 m² Gîte ∙ 4 Schlafzimmer ∙ 8 Gäste
Gîte in La Cadière-d'Azur
8 Gäste4 Schlafzimmer2 Bad120 m²
Über diese Unterkunft
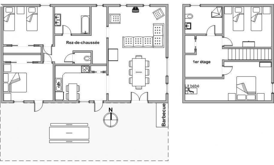
Erdgeschoss: gut ausgestattete Küche, Wohnzimmer mit Lounge, 1 Schlafzimmer 1 Bett 2 pl 160, 1 ch 2 Betten 1 pl in 0.90, Badezimmer, wc. Im Obergeschoss 1 Schlafzimmer 1 Bett 2 pl 160 Gitterbett, 1 Schlafzimmer 2 Betten 1 pl in 0.90, Bäder. Gas-Zentralheizung.
Auf den Höhen der Terrassen in Rebsorten der Bandol Appellation und wenige Minuten vom Meer entfernt, Sie hören die Zikaden und entdecken Sie die Süße des Lebens in der Provence, der Winzer im Reihenhaus, wo man im Untergeschoss eine andere Wohnung, grosse Terrasse von 40 m ² mit Pergola findet, Garten, Liegewiese, Grill.
Auf den Höhen der Terrassen in Rebsorten der Bandol Appellation und wenige Minuten vom Meer entfernt, Sie hören die Zikaden und entdecken Sie die Süße des Lebens in der Provence, der Winzer im Reihenhaus, wo man im Untergeschoss eine andere Wohnung, grosse Terrasse von 40 m ² mit Pergola findet, Garten, Liegewiese, Grill.
Räume & Aufteilung
4 Schlafzimmer
2 Badezimmer
1 Küche
120 m² Wohnfläche
8 max. Gäste
Schlafmöglichkeiten
Schlafzimmer 1
x x x
Schlafzimmer 2
Schlafzimmer 3
Schlafzimmer 4
Was diese Unterkunft bietet
WLAN
Parkplatz
Küche
TV / Fernseher
Waschmaschine
Balkon / Terrasse
Garten
dishwasher
terrace
washing_machine_available
Bewertungen
4,5 2 Bewertungen Fabelhaft
„Agréable séjour dans une très belle region. Parcontre le chemin pour accéder au gite est étroit et chaotique.“
„Notre séjour s'est très bien passé. L'accueil de notre propriétaire a été indispensable pour trouver le gîte, je l'en remercie vivement. Le logement a correspondu à nos attentes: Spacieux, très confortable, calme et adapté à notre famille de 18 mois à 65 ans. Rien ne nous a manqué, comme à la maison. Encore un grand merci à notre propriétaire pour sa gentillesse et son sens de l'accueil. Bonne continuation à elle et bon courage. Un grand MERCI.“

















