22 m² Studio ∙ 1 Schlafzimmer ∙ 4 Gäste
Studio in La Clusaz
4 Gäste1 Schlafzimmer1 Bad22 m²
Über diese Unterkunft
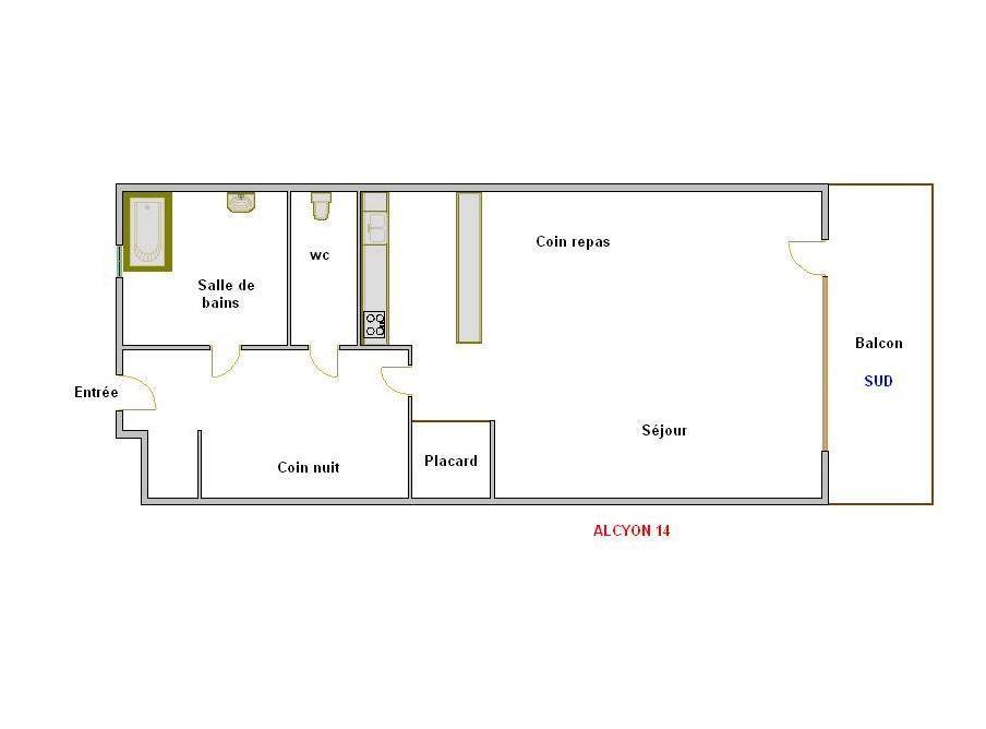
Diese Residenz liegt am oberen Ende des Dorfes La Clusaz, 250 m von den Geschäften, Restaurants und Unterhaltungsmöglichkeiten des Resorts entfernt. Eine Shuttle-Haltestelle befindet sich 240 m entfernt und ermöglicht es Ihnen, sich im Resort fortzubewegen. Fläche von ungefähr 22 m². 1te Etage. Orientierung : Süd. Blick station. Wohnzimmer mit 2 Sofabetten (80). offener Schlafbereich mit 2 Stockbetten (70). Kochnische mit Geschirrspülmaschine, Mikrowellenherd, kleiner Backofen, 2 Glaskeramikkochfelder, Kühlschrank (122L). Badezimmer mit Badewanne, Waschbecken, Handtuchtrockner. separates WC. Balkon. Die oberen Betten sind nicht für Kinder unter 6 Jahren geeignet.
Mietbedingung: der Hauptmieter muss mindestens 18 Jahre alt sein
Mietbedingung: der Hauptmieter muss mindestens 18 Jahre alt sein
Räume & Aufteilung
1 Schlafzimmer
1 Badezimmer
1 Küche
22 m² Wohnfläche
4 max. Gäste
Schlafmöglichkeiten
Schlafzimmer 1
x
Schlafzimmer 2
x
Schlafzimmer 3
Schlafzimmer 4
Was diese Unterkunft bietet
WLAN
Parkplatz
Küche
Balkon / Terrasse
Haustiere erlaubt
pets_allowed
dishwasher
internet
internet_high_speed
microwave
















