23 m² Studio ∙ 1 Schlafzimmer ∙ 4 Gäste
Studio in La Clusaz
4 Gäste1 Schlafzimmer1 Bad23 m²
Über diese Unterkunft
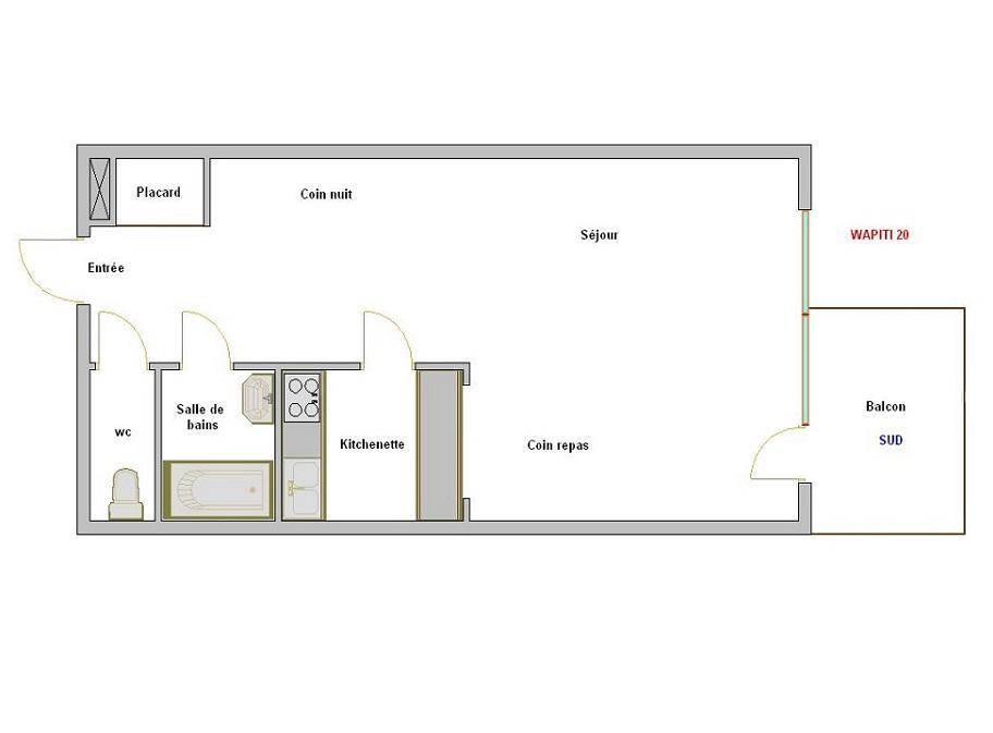
Die Wapiti-Residenz befindet sich am oberen Ende des Dorfes La Clusaz. Geschäfte, Restaurants und Unterhaltungsmöglichkeiten sind in der Nähe. Dank des Shuttles, der 190 Meter von der Residenz entfernt hält, können Sie sich im Resort problemlos fortbewegen. Der Ferienort La Clusaz bietet Ihnen mit seinen zahlreichen Aktivitäten und Unterhaltungsmöglichkeiten den ganzen Sommer über einen idealen Rahmen für einen Urlaub mit der Familie oder mit Freunden. Fläche von ungefähr 23 m². 3te Etage. Orientierung : Süd. Blick berg. Diele mit 2 Stockbetten (80). Wohnzimmer mit Klappschlafcouch (140). Kochnische mit Backofen, Geschirrspülmaschine, 2 Glaskeramikkochfelder, Kühl-Gefrier-Kombination. Badezimmer mit WC. Balkon. Die oberen Betten sind nicht für Kinder unter 6 Jahren geeignet.
Mietbedingung: der Hauptmieter muss mindestens 18 Jahre alt sein
Mietbedingung: der Hauptmieter muss mindestens 18 Jahre alt sein
Räume & Aufteilung
1 Schlafzimmer
1 Badezimmer
1 Küche
23 m² Wohnfläche
4 max. Gäste
Schlafmöglichkeiten
Schlafzimmer 1
x x
Schlafzimmer 2
Schlafzimmer 3
Schlafzimmer 4
Was diese Unterkunft bietet
WLAN
Küche
Balkon / Terrasse
dishwasher
internet
internet_high_speed
no_dogs
smoking_not_allowed
oven
children_allowed


















