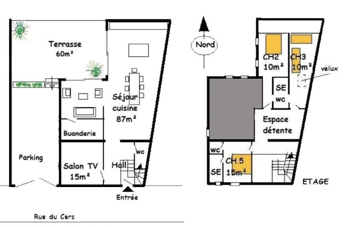
140 m² Gîte ∙ 3 Schlafzimmer ∙ 6 Gäste
Gîte in La Digne-d'Aval
6 Gäste3 Schlafzimmer140 m²
Räume & Aufteilung
3 Schlafzimmer
1 Küche
140 m² Wohnfläche
6 max. Gäste
Schlafmöglichkeiten
Schlafzimmer 1
Schlafzimmer 2
x x
Was diese Unterkunft bietet
WLAN
Küche
TV / Fernseher
Waschmaschine
Balkon / Terrasse
Pool
pool_private
dishwasher
terrace
washing_machine_available
Bewertungen
5,0 1 Bewertung Ausgezeichnet
„Le gite est très agréable et confortable, très bien équipé. Nous y avons été très bien accueillis et les propriétaires se sont montrés très disponibles. La proximité de Limoux est un plus pour l'accessibilité des commerces et la région est riche en sites à visiter. Nous y avons passé un excellent séjour.“


























