24 m² Studio ∙ 1 Schlafzimmer ∙ 4 Gäste
Studio in Les Avanchers-Valmorel
4 Gäste1 Schlafzimmer1 Bad24 m²
Über diese Unterkunft
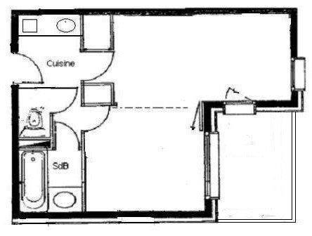
Die Residenz Coté Soleil befindet sich in Valmorel im Bezirk Le Mottet. Die ersten Geschäfte sind nur 200 m und das Ortszentrum 500 m von der Unterkunft entfernt. Sie profitieren von den Dienstleistungen und Freizeitangeboten des Ortes. Fläche von ungefähr 24 m². 1te Etage. Orientierung : Nord, Ost. Blick tal. Wohnzimmer mit Klappschlafcouch, Klappschlafcouch. Kochnische mit Backofen, 2 Herdplatten, Kühlschrank. Waschräume mit Dusche. separates WC. Balkon.
Mietbedingung: der Hauptmieter muss mindestens 18 Jahre alt sein
Mietbedingung: der Hauptmieter muss mindestens 18 Jahre alt sein
Räume & Aufteilung
1 Schlafzimmer
1 Badezimmer
1 Küche
24 m² Wohnfläche
4 max. Gäste
Schlafmöglichkeiten
Schlafzimmer 1
x
Schlafzimmer 2
Schlafzimmer 3
Was diese Unterkunft bietet
Parkplatz
Küche
Balkon / Terrasse
Haustiere erlaubt
pets_allowed
smoking_not_allowed
oven
children_allowed
heating
fridge










