31 m² Ferienwohnung ∙ 1 Schlafzimmer ∙ 5 Gäste
Ferienwohnung in Les Avanchers-Valmorel
5 Gäste1 Schlafzimmer1 Bad31 m²
Über diese Unterkunft
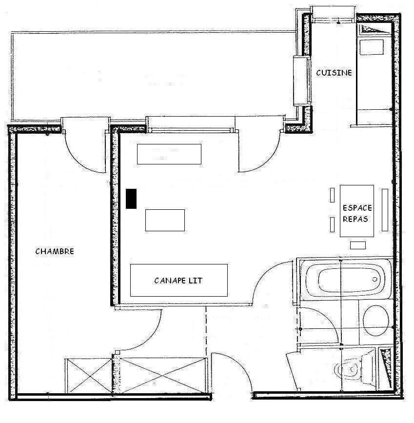
Die Residenz Coté Soleil befindet sich in Valmorel im Bezirk Le Mottet. Die ersten Geschäfte sind nur 200 m und das Ortszentrum 500 m von der Unterkunft entfernt. Sie profitieren von den Dienstleistungen und Freizeitangeboten des Ortes. Fläche von ungefähr 31 m². 1te Etage. Orientierung : Süd. Blick skipisten. Wohnzimmer mit Klappschlafcouch. Schlafzimmer mit Einzelbett, 2 Stockbetten. Kochnische mit Mikrowellengrill, Geschirrspülmaschine, 2 Herdplatten, Kühlschrank. Badezimmer mit Badewanne. separates WC. Balkon. Die oberen Betten sind nicht für Kinder unter 6 Jahren geeignet.
Mietbedingung: der Hauptmieter muss mindestens 18 Jahre alt sein
Mietbedingung: der Hauptmieter muss mindestens 18 Jahre alt sein
Räume & Aufteilung
1 Schlafzimmer
1 Badezimmer
1 Küche
31 m² Wohnfläche
5 max. Gäste
Schlafmöglichkeiten
Schlafzimmer 1
x
Schlafzimmer 2
x x
Schlafzimmer 3
Was diese Unterkunft bietet
Parkplatz
Küche
Balkon / Terrasse
Haustiere erlaubt
pets_allowed
dishwasher
cot
smoking_not_allowed
children_allowed
heating



















