32 m² Ferienwohnung ∙ 1 Schlafzimmer ∙ 5 Gäste
Ferienwohnung in Les Avanchers-Valmorel
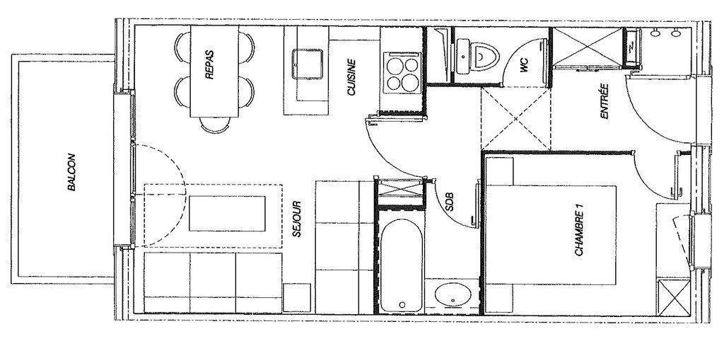
5 Gäste1 Schlafzimmer1 Bad32 m²
Über diese Unterkunft
Die Residenz Valériane mit Aufzug befindet sich in Valmorel im Waldviertel. Die ersten Geschäfte sind nur 100 m entfernt. Sie befinden sich in der Nähe der Ausgangspunkte der Wanderwege und Aktivitäten. Fläche von ungefähr 32 m². 2te Etage. Orientierung : Nord. Blick tal. Wohnzimmer mit einfache Klappschlafcouch, 2 Ausziehbetten. Schlafzimmer mit Doppelbett (140*190). Kochnische mit Mikrowellenherd, Herdplatten, Kühlschrank. Badezimmer. separates WC. Balkon.
Mietbedingung: der Hauptmieter muss mindestens 18 Jahre alt sein
Mietbedingung: der Hauptmieter muss mindestens 18 Jahre alt sein
Räume & Aufteilung
1 Schlafzimmer
1 Badezimmer
1 Küche
32 m² Wohnfläche
5 max. Gäste
Schlafmöglichkeiten
Schlafzimmer 1
x x
Schlafzimmer 2
x
Schlafzimmer 3
Schlafzimmer 4
Was diese Unterkunft bietet
Parkplatz
Küche
Balkon / Terrasse
microwave
no_dogs
smoking_not_allowed
children_allowed
heating
fridge
balcony









