85 m² Ferienwohnung ∙ 3 Schlafzimmer ∙ 7 Gäste
Ferienwohnung in Les Avanchers-Valmorel
7 Gäste3 Schlafzimmer1 Bad85 m²
Über diese Unterkunft
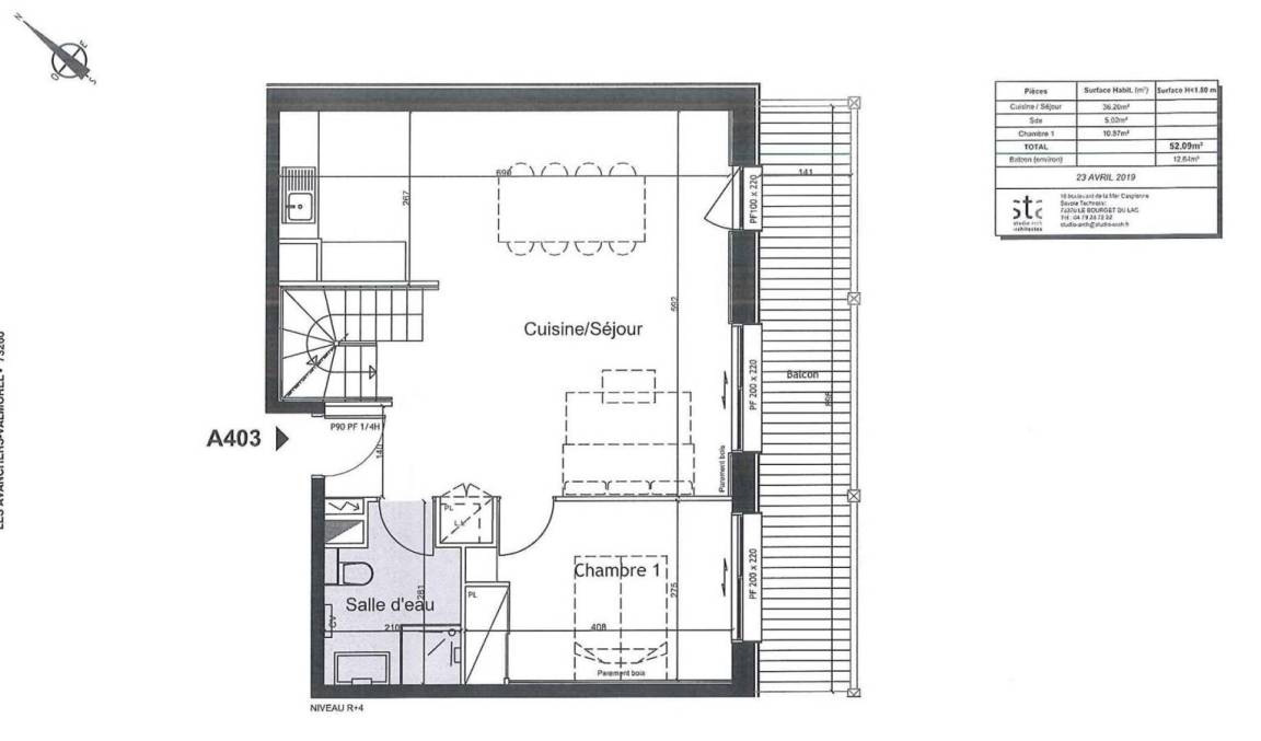
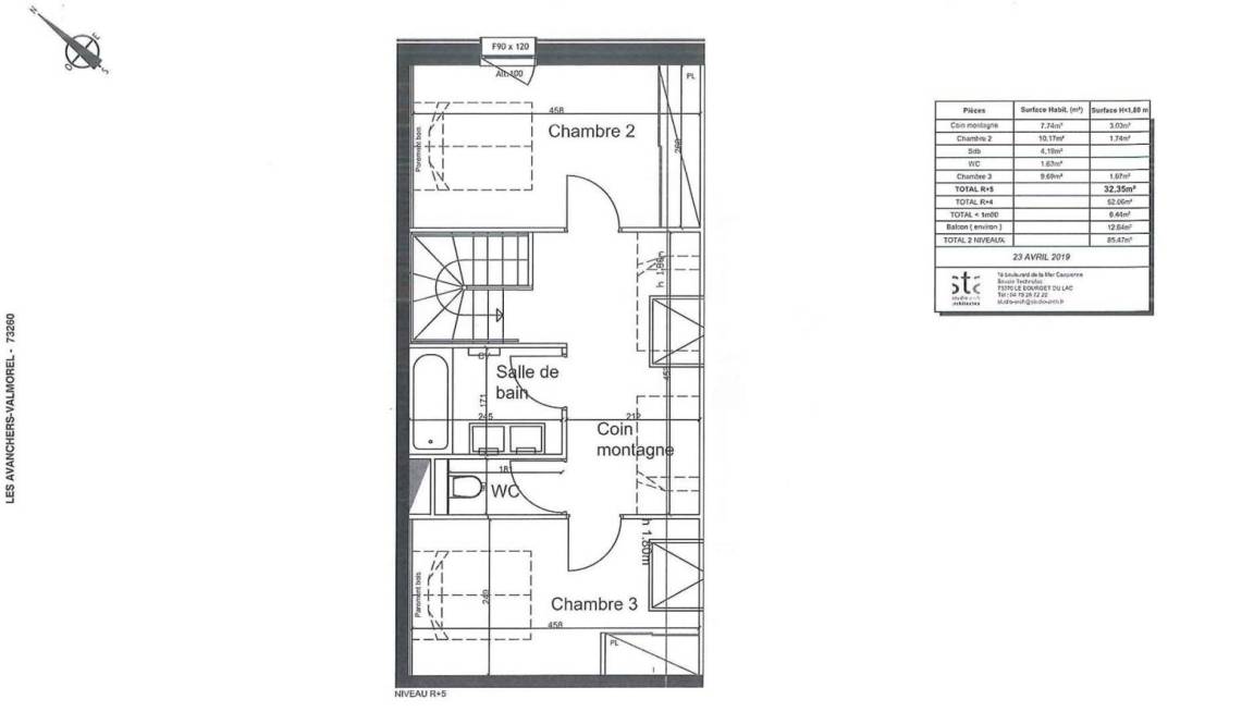
Fläche von ungefähr 85 m². 4te Etage. Orientierung : Ost, Süd-Ost, Süd. Blick berg (Massif de la Lauzière). Niveau 0 : Schlafzimmer mit Doppelbett (180x200), . Küche mit Wasserkocher, Kaffeemaschine, Backofen, Toaster, , Geschirrspülmaschine, Mikrowellenherd, Glaskeramikkochfelder, Kühlschrank. separates WC. Balkon. Niveau 1 : Schlafbereich mit Einzelbett. 2 Schlafzimmer mit 2 Einzelbetten (90x190). Badezimmer. WC.
Mietbedingung: der Hauptmieter muss mindestens 18 Jahre alt sein
Mietbedingung: der Hauptmieter muss mindestens 18 Jahre alt sein
Räume & Aufteilung
3 Schlafzimmer
1 Badezimmer
1 Küche
85 m² Wohnfläche
7 max. Gäste
Schlafmöglichkeiten
Schlafzimmer 1
x x
Schlafzimmer 2
x
Schlafzimmer 3
Schlafzimmer 4
Was diese Unterkunft bietet
Parkplatz
Küche
Balkon / Terrasse
dishwasher
microwave
cot
no_dogs
smoking_not_allowed
oven
children_allowed













