73 m² Ferienwohnung ∙ 2 Schlafzimmer ∙ 11 Gäste
Ferienwohnung in Les Avanchers-Valmorel
11 Gäste2 Schlafzimmer1 Bad73 m²
Über diese Unterkunft
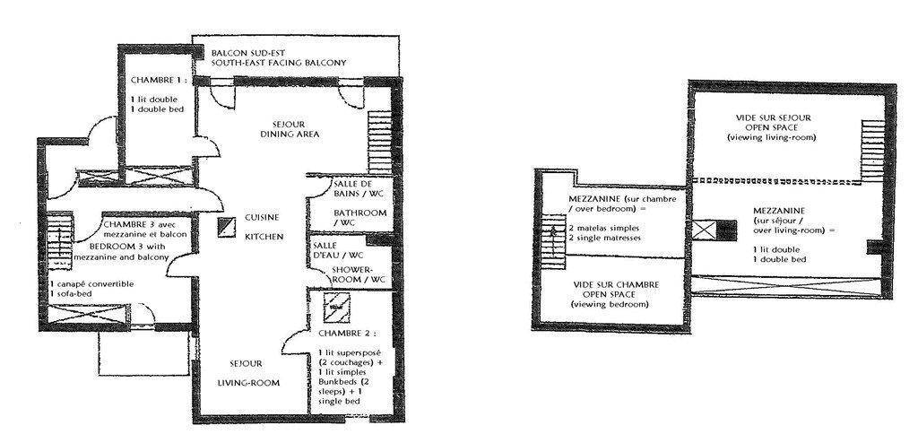
Die Residenz Le Bourg Morel befindet sich im Herzen des Ferienortes Valmorel. Sie wohnen in unmittelbarer Nähe der Geschäfte und Restaurants. Sie können die Unterhaltungs- und Aktivitätsangebote des Ferienortes neben der Residenz nutzen. Fläche von ungefähr 73 m² enthält 28 m² unter 1,80 m. 2te Etage. Orientierung : Ost, Süd. Blick berg. Wohnzimmer. Zwischengeschoss mit Doppelbett. Schlafzimmer mit Doppelbett. Schlafzimmer mit Einzelbett, 2 Stockbetten. Zwischengeschoss mit Klappschlafcouch, 2 Matratzen. offene Küche mit Wasserkocher, Kaffeemaschine, Backofen, Toaster, Geschirrspülmaschine, 2 Herdplatten, Kühlschrank. Badezimmer mit WC. Waschräume mit WC. Balkon. Die oberen Betten sind nicht für Kinder unter 6 Jahren geeignet.
Mietbedingung: der Hauptmieter muss mindestens 18 Jahre alt sein
Mietbedingung: der Hauptmieter muss mindestens 18 Jahre alt sein
Räume & Aufteilung
2 Schlafzimmer
1 Badezimmer
1 Küche
73 m² Wohnfläche
11 max. Gäste
Schlafmöglichkeiten
Schlafzimmer 1
x x
Schlafzimmer 2
x x x
Schlafzimmer 3
Schlafzimmer 4
Was diese Unterkunft bietet
Parkplatz
Küche
Balkon / Terrasse
dishwasher
cot
no_dogs
smoking_not_allowed
oven
children_allowed
coffee_machine















