140 m² Ferienhaus ∙ 3 Schlafzimmer ∙ 6 Gäste
Ferienhaus in Malchow
6 Gäste3 Schlafzimmer140 m²
Über diese Unterkunft
Das Ferienhaus Michael liegt direkt in der ersten Reihe des Ferienpark Lenz und der Gast erhält einen wunderschönen Blick auf den Wald und den nahen Plauer See.
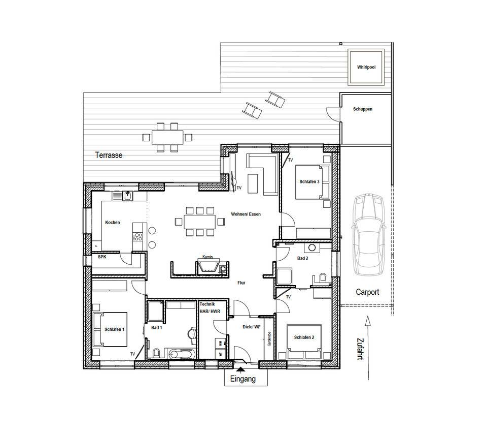
Der helle lichtdurchflutete Wohnbereich mit offener voll ausgestatteter Küche lädt regelrecht zum Entspannen ein. Ein direkter Zugang zur Terrasse mit Garten verspricht Urlaub pur.
Der Essbereich lädt zum gemütlichen Verweilen mit bis zu 6 Personen ein. Vom Wohn- & Essbereich betreten Sie die Terrasse, ein Kachelofen verspricht wohlige Wärme an kälteren Tagen.
Ob gemütlich auf der Couch mit großem Flachbildschirm entspannen oder gemeinsames Kochen in der voll ausgestatteten Küche mit einem angrenzenden Abstellraum und separatem Gefrierschrank – hier lässt sich auch mal ein längerer Aufenthalt planen.
Weiterhin verfügt das Haus über drei geräumige Schlafzimmer, jeweils mit Doppelbett und Kleiderschrank ausgestattet. Das erste Schlafzimmer ist mit einem Wellnessbadezimmer gekoppelt. Dieses ist mit einer Badewanne, einer bodengleichen Wellness-Dusche, Waschtisch, Handtuchwärmer sowie einer Toilette ausgestattet.
Zwischen dem zweiten und dritten Schlafzimmer liegt das zweite Badezimmer. Hier finden Sie ebenfalls eine bodengleiche Dusche, Waschbecken und WC.
Ein zusätzlicher kleiner Hauswirtschaftsraum bietet eine Waschmaschine und Trockner.
Eine möblierte Terrasse mit großer elektrischer Markise und ein Carport mit angrenzendem verschließbarem Schuppen sowie ein überdachter Whirlpool sind ebenfalls zu nennen.
Das Nichtraucher-Ferienhaus ist ideal für 1 bis 6 Personen. Zusätzlich ist maximal die Unterbringung eines Kleinkindes (7. Person) in einem Kinderreisebett möglich. Weitere Ausstattungsmerkmale sind: Parkplätze direkt am Haus, kostenloses WLAN und kostenfreie Nutzung des Pools.
Der helle lichtdurchflutete Wohnbereich mit offener voll ausgestatteter Küche lädt regelrecht zum Entspannen ein. Ein direkter Zugang zur Terrasse mit Garten verspricht Urlaub pur.
Der Essbereich lädt zum gemütlichen Verweilen mit bis zu 6 Personen ein. Vom Wohn- & Essbereich betreten Sie die Terrasse, ein Kachelofen verspricht wohlige Wärme an kälteren Tagen.
Ob gemütlich auf der Couch mit großem Flachbildschirm entspannen oder gemeinsames Kochen in der voll ausgestatteten Küche mit einem angrenzenden Abstellraum und separatem Gefrierschrank – hier lässt sich auch mal ein längerer Aufenthalt planen.
Weiterhin verfügt das Haus über drei geräumige Schlafzimmer, jeweils mit Doppelbett und Kleiderschrank ausgestattet. Das erste Schlafzimmer ist mit einem Wellnessbadezimmer gekoppelt. Dieses ist mit einer Badewanne, einer bodengleichen Wellness-Dusche, Waschtisch, Handtuchwärmer sowie einer Toilette ausgestattet.
Zwischen dem zweiten und dritten Schlafzimmer liegt das zweite Badezimmer. Hier finden Sie ebenfalls eine bodengleiche Dusche, Waschbecken und WC.
Ein zusätzlicher kleiner Hauswirtschaftsraum bietet eine Waschmaschine und Trockner.
Eine möblierte Terrasse mit großer elektrischer Markise und ein Carport mit angrenzendem verschließbarem Schuppen sowie ein überdachter Whirlpool sind ebenfalls zu nennen.
Das Nichtraucher-Ferienhaus ist ideal für 1 bis 6 Personen. Zusätzlich ist maximal die Unterbringung eines Kleinkindes (7. Person) in einem Kinderreisebett möglich. Weitere Ausstattungsmerkmale sind: Parkplätze direkt am Haus, kostenloses WLAN und kostenfreie Nutzung des Pools.
Räume & Aufteilung
3 Schlafzimmer
1 Küche
140 m² Wohnfläche
6 max. Gäste
Schlafmöglichkeiten
Schlafzimmer 1
x
Was diese Unterkunft bietet
WLAN
Parkplatz
Küche
Balkon / Terrasse
Garten
Pool
Sauna
Haustiere erlaubt
pets_allowed
dishwasher



















