30 m² Ferienwohnung ∙ 1 Schlafzimmer ∙ 5 Gäste
Ferienwohnung in Morzine
5 Gäste1 Schlafzimmer1 Bad30 m²
Über diese Unterkunft
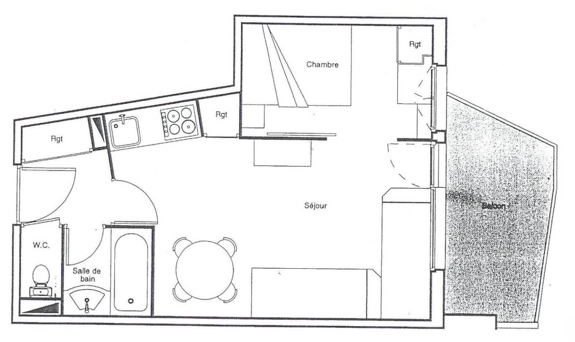
Die Residenz Hôtel de la Falaise befindet sich im Stadtteil Falaise, in der Nähe der Bahnhofsrezeption, der ersten Skilifte und Geschäfte. Dank der Nähe zu den ersten Wanderwegen können Sie Ihren Aufenthalt im Resort Avoriaz optimal nutzen. Fläche von ungefähr 30 m². 6te Etage. Orientierung : Ost, Süd. Wohnzimmer mit einfache Klappschlafcouch, Ausziehschlafcouch für 2 Personen. Schlafzimmer mit Doppelbett. Kochnische mit Wasserkocher, Kaffeemaschine, Toaster, Geschirrspülmaschine, Mikrowellenherd, 2 Glaskeramikkochfelder, Kühlschrank. Badezimmer. separates WC. Balkon.
Mietbedingung: der Hauptmieter muss mindestens 18 Jahre alt sein
Mietbedingung: der Hauptmieter muss mindestens 18 Jahre alt sein
Räume & Aufteilung
1 Schlafzimmer
1 Badezimmer
1 Küche
30 m² Wohnfläche
5 max. Gäste
Schlafmöglichkeiten
Schlafzimmer 1
x
Schlafzimmer 2
x
Schlafzimmer 3
Schlafzimmer 4
Was diese Unterkunft bietet
WLAN
Küche
Balkon / Terrasse
dishwasher
internet
internet_high_speed
microwave
no_dogs
smoking_not_allowed
children_allowed












