280 m² Ferienhaus ∙ 5 Schlafzimmer ∙ 10 Gäste
Ferienhaus in Nakskov
Über diese Unterkunft
Willkommen im idyllischen Feriengebiet "Langø Strand", wo dich dieses besonders schöne Ferienhaus aus Holz erwartet.
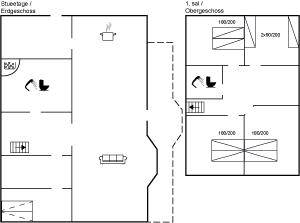
Das Haus ist geräumig und tritt einladend hervor. Im Erdgeschoss findest du eine große, offene Küche, einen Essbereich, ein Schlafzimmer sowie ein gemütliches Wohnzimmer. Das große Badezimmer enthält einen Whirlpool, wo du dich im warmen Wasser entspannen kannst. Vom Wohnzimmer aus gelangst du direkt auf die große Terrasse und in den schönen Garten, wo sich die Kinder stundenlang tummeln können. Hier findest du auch den Grill, auf dem du leckere Mahlzeiten zubereiten kannst.
Im Obergeschoss gibt es vier große Schlafzimmer, ein weiteres Badezimmer sowie ein gemütliches Fernsehzimmer mit bequemen Möbeln.
Alles in allem ein schönes Ferienhaus, das den perfekten Rahmen um einen unvergesslichen Urlaub mit der Familie oder mit guten Freunden bilden kann - ungeachtet der Jahreszeit.
Übrigens: Die Nebenkosten für Wasser, Heizung und Strom sind im Mietpreis enthalten.
Langø liegt im westlichen Teil von Lolland direkt am Nakskov Fjord. Es ist ein ruhiger Ferienort mitten in wunderschöner Natur. Langø hat einen Hafen, der sowohl von Berufsfischern als auch von Freizeitfischern genutzt wird. Die nächste größere Stadt in der Nähe ist Nakskov - etwa 13 Kilometer entfernt.
Ursprünglich war Langø eine Insel, doch durch den Bau vom Deich "Det Lollandsk Dige" nach der Sturmflut von 1872 wurde diese mit Lolland verbunden.
In und um Langø gibt es viele Möglichkeiten für einen aktiven Urlaub. Der 63 Kilometer lange Deich, der Lolland und das flache Land schützt, lädt zu Rad- und Wandertouren ein. Der Fjord eignet sich hervorragend für Windsurfer, Seekajakfahrer und vor allem Angler. Wenn du Golf spielst, findest du einen Golfplatz in der Nähe von Nakskov.
Man kan im Nakskov Fjord bei Langø Baden, aber es lohnt sich ganz bestimmt an den Strand "Albuen Strand" zu fahren – ein sieben Kilometer langer Sandstrand westlich von Langø. Von dort aus kannst du den Schiffsverkehr im Langelandsbelt beobachten oder den Blick auf Langeland genießen. Auch der Strand "Hestehovedet Strand" in Nakskov ist eine gute Alternative. Er hat einen 190 Meter langen Badesteg und das Wasser hier ist oft wärmer als im übrigen Dänemark.
Das Ferienhaus eignet sich für 10 Personen. Die Ferienunterkunft hat eine Wohnfläche von 280 m², ist 2-stöckig, und wurde 2002 gebaut. Es ist erlaubt 2 Haustiere mitzubringen. Fußbodenheizung in allen Räumen. Die Ferienunterkunft ist mit Waschmaschine ausgestattet. Wäschetrockner. Tiefkühlmöglichkeit mit 60 Liter Nutzinhalt.
DraußenDie Ferienunterkunft liegt auf einem 1067 m² großen und abgeschirmten Gartengrundstück. Die Entfernung zum Meer beträgt 300 m. Die nächste Einkaufsmöglichkeit liegt 7000 m entfernt. Es steht ein offenes Terrassenareal zur Verfügung. Es steht ein Carport zur Verfügung. Parkplatz auf dem Grundstück.
SchlafverhältnisseDie Schlafplätze verteilen sich auf 5 Schlafräume. 10 Schlafplätze in Doppelbetten.
KücheDie Küche ist mit Kühlschrank ausgestattet. Außerdem gibt es 4 Keramik-Kochfelder, Umluftofen, Mikrowelle sowie Geschirrspüler.
WC und BadEs gibt 2 Badezimmer mit Duschnische und 2 Toiletten. Fußbodenheizung in 2 Badezimmern.
WhirlpoolEntspannen Sie sich im Innen-Durchlauf-Whirlpool für 2 Personen.
MultimedienIn der Ferienunterkunft gibt es 2 Fernseher mit Smart-TV. 1-3 dänische Fernsehsender. 1-3 deutsche Fernsehsender. Es steht kabellose Internetverbindung zur Verfügung.






















