73 m² Ferienhaus ∙ 3 Schlafzimmer ∙ 6 Gäste
Ferienhaus in Rømø
Über diese Unterkunft
Dieses nette Ferienhaus liegt in landschaftlich schöner Umgebung - nahe am Wasser.
Hinweis: Es gibt einen Drahtzaun (80 cm hoch), der sich leicht mit Zaunpfählen aufstellen lässt. Nach dem Aufenthalt wird darum gebeten, den Zaun wieder zusammenzurollen.
Das Ferienhaus eignet sich für 6 Personen. Die Ferienunterkunft hat eine Wohnfläche von 73 m² und wurde 1959 gebaut. 2022 wurde die Ferienunterkunft renoviert. Es ist erlaubt 2 Haustiere mitzubringen. Die Ferienunterkunft ist mit einer energiefreundlichen Luft-Luft-Wärmepumpe ausgestattet. Fußbodenheizung in allen Klinkerböden. Die Ferienunterkunft ist mit Waschmaschine ausgestattet. Tiefkühlmöglichkeit mit 23 Liter Nutzinhalt. Es gibt außerdem einen Kaminofen. Für die jüngsten Feriengäste ist 1 Kinderhochstuhl vorhanden.
DraußenDie Ferienunterkunft liegt auf einem 2500 m² großen Naturgrundstück. Die Entfernung zum Meer beträgt 550 m. Die nächste Einkaufsmöglichkeit liegt 900 m entfernt. In einem Abstand von 6400 m gibt es einen Golfplatz. Es steht ein offenes Terrassenareal zur Verfügung. Außerdem gibt es überdachte Terrasse. Schaukel. Sandkasten. Die Entfernung zu einem Spielplatz beträgt 1000 m. Es steht ein Grill zur Verfügung. Parkplatz auf dem Grundstück.
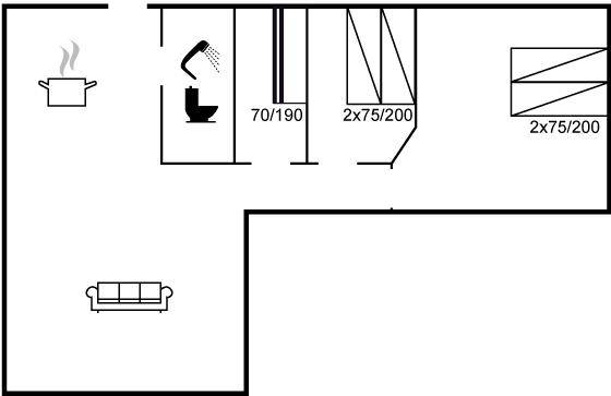
SchlafverhältnisseDie Schlafplätze verteilen sich auf 3 Schlafräume. 4 Schlafplätze in Doppelbetten. 2 Schlafplätze in einem Etagenbett.
KücheDie Küche ist mit Kühlschrank ausgestattet, Umluftofen, Mikrowelle sowie Geschirrspüler.
WC und BadEs gibt 1 Badezimmer mit Duschnische und 1 Toilette.. Fußbodenheizung in 1 Badezimmer.
MultimedienIn der Ferienunterkunft gibt es 1 Fernseher mit Smart-TV.1 Chromecast. Radio. Mindestens 4 dänische Fernsehsender. Mindestens 4 deutsche Fernsehsender. Mindestens 4 englische Fernsehsender. Es steht kabellose Internetverbindung zur Verfügung.


























