68 m² Gîte ∙ 2 Schlafzimmer ∙ 5 Gäste
Gîte in Roquebrune-sur-Argens
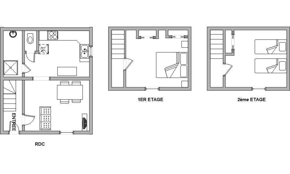
Räume & Aufteilung
Schlafmöglichkeiten
Schlafzimmer 1
Schlafzimmer 2
Schlafzimmer 3
Schlafzimmer 4
Was diese Unterkunft bietet
Bewertungen
„Point de départ idéal pour une visite sans contrainte des environs: Plages, chemin des douaniers de st aygulf, les villages pittoresques des alentours, les marchés, les ballades en front de mer sur fregus/ st Raphael etc…Beaucoup de coins agréables et de produits locaux / olive et rosés de Provence).“
„Dans un environnement merveilleux, le gîte nous a plu malgré quelques imperfections comme le volume insuffisant d'eau chaude (nous étions 3).C'est très calme.“
„Jolie bâtisse, courette clôturée parfait pour que notre chien circule entre l extérieur et l' intérieur, ainsi que pour y prendre les repas. Grands terrains accessibles pour laisser courir le chien. Propriétaire très accueillante et chaleureuse et de très bons conseilsUn gîte confortable et simple, avec le minima attenduA proximité de tous commerces, accessibilité rapide“
„Très grandes chambres. Bonnes capacités de rangements. Gite à l'écart calme de la campagne mais proximité immédiate de l'autoroute et de tout commerce.“
„Très bon accueil dans un cadre idyllique la propriétaire est à notre écoute je conseille se gîte“














