65 m² Ferienwohnung ∙ 2 Schlafzimmer ∙ 4 Gäste
Ferienwohnung in Sankt Peter-Ording
4 Gäste2 Schlafzimmer65 m²
Über diese Unterkunft
Kurzbeschreibung:
Urlaubsdomizil St. Peter Ording! Genießen Sie das Nordklima und erholen Sie sich! Ferienwohnung mit Balkon und fantastischem Ausblick!
Lagebeschreibung:
Die Ferienwohnung auf St. Peter Ording befindet sich in ruhiger und ansprechender Umgebung. Sie wohnen in schöner Lage und fernab von jeglichem Autoverkehr und erreichen den Seedeich, den Böhler Leuchtturm und die Dünen in wenigen Gehminuten. Verbringen Sie die schönste Jahreszeit auf unserer reizenden Nordseeküste St. Peter Ording. Erleben Sie das Nordklima hautnah und atmen Sie die Nordsee Luft ein.
Spazieren Sie an der schönen Promenade entlang und genießen Sie den Blick auf die Nordsee. Die Restaurants sind im maritimen Still gehalten und versprechen das Beste aus der nordischen Küche. Erholen Sie sich auf unserem Urlaubsdomizil und lassen Sie die Seele baumeln. Schwingen Sie sich auf Ihr Surfbrett und erleben Sie feinstes Wellenreiten. Für Anfänger oder Profis ist immer die richtige Welle dabei.
Ausstattungen:
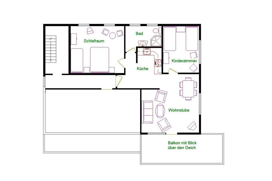
Es erwartet Sie eine gemütliche Nichtraucher Ferienwohnung mit Platz für bis zu 4 Personen. Die Ferienwohnung ist ideal geschnitten mit großzügiger Wohnküche. Im Wohnbereich erwartet Sie ein bequemes Sofa und zwei Sessel. Sie gelangen vom Wohnbereich direkt auf den Balkon, die großen Fenster verleihen dem Raum viel Licht und ein wohliges zuhause Gefühl. Des Weiteren gibt es einen Flatscreen und eine Essecke für bis zu vier Personen. Unsere moderne Küchenzeile ist mit allem, was Sie für ein zauberhaftes Gericht benötigen ausgestattet.
Die Küche ist mit Ceranfeld, Kühlschrank, Spülmaschine, Abzugshaube eingerichtet und bietet genügend Arbeitsfläche. Ein Schlafzimmer ist mit Doppelbett begehbarem Kleiderschrank, und das zweite ist mit zwei Einzelbetten, Kleiderschrank und Nachttischen mit Lampe ausgestattet. Das Badezimmer ist mit Dusche und WC versehen und lässt viel Platz für Ihre Utensilien.
Außenbereich:
Ein kostenloser Parkplatz steht für Sie zur Verfügung.
Besonderes:
Bettwäsche und Handtücher sind kostenpflichtig. In der kompletten Ferienwohnung ist W-LAN vorhanden.
Allgemeine Informationen:
Anreise ab 16:00 Uhr
Abreise bis 10:00 Uhr
Zusätzliche Preisinfos:
Bitte beachten Sie, dass in St. Peter-Ording eine Kurtaxe zu leisten ist. Diese bei der Kurverwaltung zu entrichten.
Nach der Buchung stehen Ihnen zusätzlich die Zahlungsmöglichkeiten Banküberweisung, Kreditkarte, Sofortüberweisung und Google/Apple Pay zur Verfügung. Weitere Informationen entnehmen Sie bitte Ihrer Buchungsbestätigung.
Urlaubsdomizil St. Peter Ording! Genießen Sie das Nordklima und erholen Sie sich! Ferienwohnung mit Balkon und fantastischem Ausblick!
Lagebeschreibung:
Die Ferienwohnung auf St. Peter Ording befindet sich in ruhiger und ansprechender Umgebung. Sie wohnen in schöner Lage und fernab von jeglichem Autoverkehr und erreichen den Seedeich, den Böhler Leuchtturm und die Dünen in wenigen Gehminuten. Verbringen Sie die schönste Jahreszeit auf unserer reizenden Nordseeküste St. Peter Ording. Erleben Sie das Nordklima hautnah und atmen Sie die Nordsee Luft ein.
Spazieren Sie an der schönen Promenade entlang und genießen Sie den Blick auf die Nordsee. Die Restaurants sind im maritimen Still gehalten und versprechen das Beste aus der nordischen Küche. Erholen Sie sich auf unserem Urlaubsdomizil und lassen Sie die Seele baumeln. Schwingen Sie sich auf Ihr Surfbrett und erleben Sie feinstes Wellenreiten. Für Anfänger oder Profis ist immer die richtige Welle dabei.
Ausstattungen:
Es erwartet Sie eine gemütliche Nichtraucher Ferienwohnung mit Platz für bis zu 4 Personen. Die Ferienwohnung ist ideal geschnitten mit großzügiger Wohnküche. Im Wohnbereich erwartet Sie ein bequemes Sofa und zwei Sessel. Sie gelangen vom Wohnbereich direkt auf den Balkon, die großen Fenster verleihen dem Raum viel Licht und ein wohliges zuhause Gefühl. Des Weiteren gibt es einen Flatscreen und eine Essecke für bis zu vier Personen. Unsere moderne Küchenzeile ist mit allem, was Sie für ein zauberhaftes Gericht benötigen ausgestattet.
Die Küche ist mit Ceranfeld, Kühlschrank, Spülmaschine, Abzugshaube eingerichtet und bietet genügend Arbeitsfläche. Ein Schlafzimmer ist mit Doppelbett begehbarem Kleiderschrank, und das zweite ist mit zwei Einzelbetten, Kleiderschrank und Nachttischen mit Lampe ausgestattet. Das Badezimmer ist mit Dusche und WC versehen und lässt viel Platz für Ihre Utensilien.
Außenbereich:
Ein kostenloser Parkplatz steht für Sie zur Verfügung.
Besonderes:
Bettwäsche und Handtücher sind kostenpflichtig. In der kompletten Ferienwohnung ist W-LAN vorhanden.
Allgemeine Informationen:
Anreise ab 16:00 Uhr
Abreise bis 10:00 Uhr
Zusätzliche Preisinfos:
Bitte beachten Sie, dass in St. Peter-Ording eine Kurtaxe zu leisten ist. Diese bei der Kurverwaltung zu entrichten.
Nach der Buchung stehen Ihnen zusätzlich die Zahlungsmöglichkeiten Banküberweisung, Kreditkarte, Sofortüberweisung und Google/Apple Pay zur Verfügung. Weitere Informationen entnehmen Sie bitte Ihrer Buchungsbestätigung.
Preisinformationen
Bitte beachten Sie, dass in St. Peter-Ording eine Kurtaxe zu leisten ist. Diese bei der Kurverwaltung zu entrichten.Räume & Aufteilung
2 Schlafzimmer
1 Küche
65 m² Wohnfläche
4 max. Gäste
Schlafmöglichkeiten
Schlafzimmer 1
Was diese Unterkunft bietet
WLAN
Küche
TV / Fernseher
Waschmaschine
Balkon / Terrasse
Garten
dishwasher
washing_machine_available
tv
internet













