84 m² Ferienhaus ∙ 3 Schlafzimmer ∙ 6 Gäste
Ferienhaus in Sjællands Odde
Über diese Unterkunft
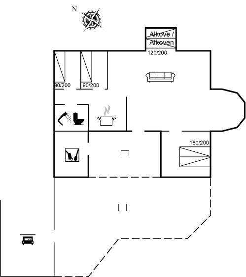
Dieses gemütliche Ferienhaus liegt auf einem schönen Grundstück mit Rasen - in einem ruhigen Ferienhausgebiet nicht weit vom Wasser, der schönen Natur und dem Fährbett der Strecke Sjællands Odde – Aarhus entfernt. Zum Haus gehört eine gute und zum Teil überdachte Terrasse mit Gartenmöbeln. Übrigens: 2 der insgesamt 6 Schlafplätze befinden sich im Wohnzimmer (siehe Grundriss).
Hinweis: Es gibt eine Saloon-Schwingtür zu einem der Zimmer und keine normale Tür.
Das Ferienhaus eignet sich für 6 Personen. 2 der Schlafplätze eignen sich jedoch nur für größere Kinder (4-11 Jahre). Die Ferienunterkunft hat eine Wohnfläche von 84 m² und wurde 1979 gebaut. 2002 wurde die Ferienunterkunft teilweise renoviert. Haustiere dürfen nicht mitgebracht werden. Die Ferienunterkunft ist mit energiesparender Wärmepumpe ausgestattet. Fußbodenheizung in allen Klinkerböden. Die Ferienunterkunft ist mit Waschmaschine ausgestattet. Wäschetrockner. Tiefkühlmöglichkeit mit 40 Liter Nutzinhalt. Es gibt außerdem einen Kaminofen.
DraußenDie Ferienunterkunft liegt auf einem 1430 m² großen Naturgrundstück. Die Entfernung zum Meer beträgt 600 m. Die nächste Einkaufsmöglichkeit liegt 4400 m entfernt. Es steht ein 40 m² Terrassenareal zur Verfügung. Außerdem gibt es 18 m² überdachte Terrasse. Geräteraum. Fußballtor. Es steht ein Grill zur Verfügung. Es steht ein Carport zur Verfügung. Parkplatz auf dem Grundstück.
SchlafverhältnisseDie Schlafplätze verteilen sich auf 3 Schlafräume. 2 Schlafplätze in einem Doppelbett. 2 Schlafplätze in Einzelbetten.2 Schlafplätze im Alkoven. 2 von diesen Schlafplätzen befinden sich im Wohnzimmer.
KücheDie Küche ist mit Kühlschrank ausgestattet. Außerdem gibt es 4 Keramik-Kochfelder, Umluftofen sowie Geschirrspüler.
WC und BadEs gibt 1 Badezimmer mit Duschnische und 1 Toilette.. Fußbodenheizung in 1 Badezimmer.
MultimedienIn der Ferienunterkunft gibt es einen Fernseher. Blu-ray-Player. Radio. Stereoanlage. CD-Player. Mindestens 4 dänische Fernsehsender. 1-3 schwedische Fernsehsender. 1-3 deutsche Fernsehsender. Es steht kabellose Internetverbindung zur Verfügung.
Räume & Aufteilung
Schlafmöglichkeiten
Schlafzimmer 1
Schlafzimmer 2
Was diese Unterkunft bietet
Bewertungen
„The vacation at the holiday home: Alt var helt perfekt undtagen en ting. Vi var gået efter et hus med tre separate soveværelser. Det fremgik af billeder og plantegning. Men da vi ankom var der en saloon-dør for et af værelserne, så det praktisk talt var åbent ud til resten af huset. Jeg havde ikke booket det hus, hvis jeg havde været opmærksom på det. Med det sagt, som sædvanlig god service og standard. Jeg havde noget korrespondance med kontoret frem mod ankomst. Jeg oplevede kun hurtig, venlig og oplysende respons. Så jeg booker også huse fremover ved jer!“
„The local office: Vi ringede ved ankomst, da vi ikke kunne finde nr til nøgle boks men ingen tog den på nød nummeret. Vi har betalt depositum for vand/varme, men har endnu ikke fået opgørelse? Departure and follow up: Vi har ikke fået slut regnskab /depositum retur“
„The vacation at the holiday home: Es war nicht so sauber!“
„Departure and follow up: Vi undrer os over hvornår der er aflæst el inden vi kom. Vores aflæsning ligger lige under 100 fra jeres. Cleanliness: Der var ikke pudset vinduer i lang tid før vi kom.“



























