150 m² Ferienhaus ∙ 4 Schlafzimmer ∙ 8 Gäste
Ferienhaus in Skallerup Klit
Über diese Unterkunft
Gut gelegenes Sommerhaus in Nørlev, nah am Skallerup Seaside mit tropischem Badeparadies, römischem Bad, Einkaufsmöglichkeiten, Bowling und Sporteinrichtungen. In der Nähe eines schönen Badestrandes und mit Möglichkeiten für Spaziergänge in schöner Natur. Das Haus ist sowohl für Familien als auch für Paare geeignet.
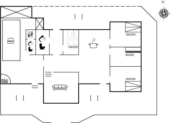
EinrichtungDas Ferienhaus eignet sich für 8 Personen sowie 1 Kleinkind bis zu 3 Jahren. Die Ferienunterkunft hat eine Wohnfläche von 150 m² und wurde 1992 gebaut. 2002 wurde die Ferienunterkunft teilweise renoviert. Haustiere dürfen nicht mitgebracht werden. Die Ferienunterkunft ist mit 1 energiefreundlichen Luft-Wasser-Wärmepumpe und 1 energiefreundlichen Luft-Luft-Wärmepumpe ausgestattet. Fußbodenheizung im Flur. Die Ferienunterkunft ist mit Waschmaschine ausgestattet. Wäschetrockner. Tiefkühlmöglichkeit mit 60 Liter Nutzinhalt. Es gibt außerdem einen Kaminofen. Für die jüngsten Feriengäste ist 1 Kinderhochstuhl vorhanden.
DraußenDie Ferienunterkunft liegt auf einem 1800 m² großen Naturgrundstück. Die Entfernung zum Meer beträgt 425 m. Die nächste Einkaufsmöglichkeit liegt 500 m entfernt. Es steht ein offenes Terrassenareal zur Verfügung. Schaukel. Sandkasten. Es steht ein Grill zur Verfügung. Parkplatz auf dem Grundstück.
SwimmingpoolIm Swimmingpool können sich Jung und Alt gemeinsam Vergnügen. Der Swimmingpool misst bis zu 3,5 m in der Breite, 5 m in der Länge und bis zu 1,5 m in der Tiefe. Die Wassertemperatur liegt zwischen 24 und 28° C. Es ist eine Gegenstromanlage installiert. Fußbodenheizung in der Swimmingpool-Abteilung.
SchlafverhältnisseDie Schlafplätze verteilen sich auf 4 Schlafräume. 4 Schlafplätze in Doppelbetten. 2 Schlafplätze in einem Etagenbett. 2 Schlafplätze auf einer Doppelschlafcouch. 2 Schlafplätze auf Matratzen. 2 von diesen Schlafplätzen befinden sich im offenen Obergeschoss. Ferner steht ein Kinderbett zur Verfügung.
KücheDie Küche ist mit Kühlschrank ausgestattet. Außerdem gibt es 4 Induktions-Kochzonen, Umluftofen, Mikrowelle sowie Geschirrspüler. Fußbodenheizung in der Küche.
WC und BadEs gibt 2 Badezimmer mit Duschnische und 2 Toiletten Es steht eine Sauna zur Verfügung in der Sie sich so richtig entspannen können.
WhirlpoolEntspannen Sie sich im Innen-Durchlauf-Whirlpool für 2 Personen.
Multimedien2 Smart-TV.1 Chromecast. DVD-Player. Mindestens 4 dänische Fernsehsender. 1-3 schwedische Fernsehsender. 1-3 norwegische Fernsehsender. Mindestens 4 deutsche Fernsehsender. Es steht kabellose Internetverbindung zur Verfügung.



























