111 m² Ferienhaus ∙ 3 Schlafzimmer ∙ 7 Gäste
Ferienhaus in Thisted
Über diese Unterkunft
Dieses herrliche und gepflegte Ferienhaus liegt in einem der besten Viertel von Klitmøller – nicht weit vom Meer entfernt. Das Grundstück ist von hohen Bäumen umgeben und daher finden Sie leicht ein vor dem Wind geschütztes Plätzchen.
EinrichtungDas Ferienhaus eignet sich für 7 Personen sowie 1 Kleinkind bis zu 3 Jahren. 1 Schlafplatz eignet sich jedoch nur für größere Kinder (4-11 Jahre). Die Ferienunterkunft hat eine Wohnfläche von 111 m² und wurde 1991 gebaut. Es ist erlaubt 1 Haustier mitzubringen. Die Ferienunterkunft ist mit energiesparender Wärmepumpe ausgestattet. Die Ferienunterkunft ist mit Waschmaschine ausgestattet. Wäschetrockner. Tiefkühlmöglichkeit mit 65 Liter Nutzinhalt. Es gibt außerdem einen Kaminofen. Für die jüngsten Feriengäste ist 1 Kinderhochstuhl vorhanden.
DraußenDie Ferienunterkunft liegt auf einem 1300 m² großen Gartengrundstück. Die Entfernung zum Meer beträgt 350 m. Die nächste Einkaufsmöglichkeit liegt 900 m entfernt. Es steht ein 40 m² Terrassenareal zur Verfügung. Geräteraum. Parkplatz auf dem Grundstück.
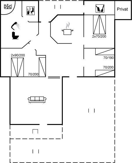
SchlafverhältnisseDie Schlafplätze verteilen sich auf 3 Schlafräume. 4 Schlafplätze in Doppelbetten. 3 Schlafplätze in Einzelbetten. Ferner steht ein Kinderbett zur Verfügung.
KücheDie Küche ist mit Kühlschrank ausgestattet. Außerdem gibt es 4 Keramik-Kochfelder, Umluftofen, Mikrowelle sowie Geschirrspüler.
WC und BadEs gibt 1 Badezimmer mit Duschnische und 1 Toilette.. Fußbodenheizung in 1 Badezimmer. Es steht eine Sauna zur Verfügung in der Sie sich so richtig entspannen können.
WhirlpoolEntspannen Sie sich im Innen-Durchlauf-Whirlpool für 2 Personen.
MultimedienIn der Ferienunterkunft gibt es einen Fernseher. Radio. Stereoanlage. CD-Player. Mindestens 4 dänische Fernsehsender. Mindestens 4 deutsche Fernsehsender. Es steht kabellose Internetverbindung zur Verfügung.
Räume & Aufteilung
Schlafmöglichkeiten
Schlafzimmer 1
Schlafzimmer 2
Was diese Unterkunft bietet
Bewertungen
„Advice to other guests: Die Duschkabine lässt zu wünschen übrig Das Aussengelände ist durch Brombeergestrüpp fast zugewachsen. Positiv: Das Haus ist komplett ausgestattet, gut heizbar. Insgesamt sehr / zu teuer The vacation at the holiday home: Duschkabine Schimmel“
„The local office: Wir hatten kein Anliegen und können es deshalb nicht bewerten. Cleanliness: Wir mussten selbst erstmal einiges sauber machen. Oberflächen abwischen. Tische, Fensterbänke, alle Küchenoberflächen. Teilweise waren diese so verschmutzt, dass die benutzten Tücher schwarz waren. Hinter den Türen und unter den Betten wurde offensichtlich lange schon nicht mehr sauber gemacht. Das Sofa war voller Sand. Das haben wir leider in den letzten Jahren immer, egal in welchem Haus. Eine Endreinigung zu buchen ist sehr teuer und die Frage ist, wofür? The holiday home itself: Das Haus war sehr verwohnt. Die Matratzen uralt, viel zu klein und hart. Der Kühlschrank hat gerochen. Das Inventar könnte mal erneuert werden und die Schränke entrümpelt. Das Badezimmer war sehr dunkel und bedarf einer Sanierung. Vor Spinnen darf man keine Angst haben, wogegen man aber nichts machen kann. Der Kamin hat nicht richtig funktioniert.“
„Advice to other guests: - schöne Badestelle am Nors Sø - gutes Fischrestaurant / Räucherei in Hanstholm - Seewasser Bad in Vorupør“
„Advice to other guests: Das Haus ist ein gemütliches typisches Holzferienhaus und wirklich schöner Lage. An sich ist es auch sehr gemütlich, aber… …. Die Matratzen in den Einzelbetten sind absolut durchgelegen. …. das Bad ist sehr dunkel und schreit nach einer KomplettSanierung. Wir waren 1 Woche vor Ort und haben die Zeit in Klitmøller sehr genossen, aber das Haus selbst, würden wir nicht mehr buchen. Die Mitarbeiter der Agentur Sonne und Strand vor Ort, sind sehr freundlich und haben sich unsere „Anmerkungen" zum Haus angehört und gesagt, man wird das prüfen. Für den nächsten Mieter hoffen wir das Beste. The vacation at the holiday home: Der Aufenthalt war an sich richtig schön. Das Haus ist auch gemütlich, aber der Zustand des Bades ist dringend renovierungsbedürftig, die Matratzen der Einzelbetten sind mehr als durchgelegen. Der Bodendüsen des Whirlpools waren ohne Funktion. Dieses wurde aber vor Ort auch angemerkt. Den Techniker, der uns seitens der Vermittlung angeboten wurde, haben wir abgelehnt, da in der Kürze unseres Aufenthalts der Whirlpool, nicht zwingend notwendig war. Der Zustand des Bades wurde ebenfalls im Büro vor Ort angesprochen, fehlende Sauberkeit und mangelndes Licht.“
„Advice to other guests: Die Lage des Hauses ist sehr schön mit einer nichteinsehbaren Terrasse. Den Ofen muss man mit "etwas Gefühl" beim Anheizen belüften, z. B. mit leicht geöffneter Klappe. Man sollte bei der Planung auch beachten, dass es nur ein Bad mit WC gibt, kein Gäste-WC.“
„The vacation at the holiday home: Bad und Küchen Einrichtung veraltet. Ferienhaus ist ca. 3 Wochen vor Anreise gereinigt worden, dazwischen aber genutzt worden. Man hätte vor Anreise eine Kontrolle durchführen müssen.“
„The vacation at the holiday home: Der Verbrauch wurde noch nicht abgerechnet“
„The vacation at the holiday home: Fotos in der Beschreibung sind nicht mehr aktuell; Haus und Einrichtung ist deutlich älter, als es auf den Fotos zu sehen ist“






























