147 m² Ferienhaus ∙ 5 Schlafzimmer ∙ 12 Gäste
Ferienhaus in Thisted
Über diese Unterkunft
Dieses große und schöne, neu erbaute Aktivitätshaus. Liegt im beliebten Feriengebiet Klitmøller - im Herzen vom Surfparadies Cold Hawaii.
In der schönen Natur rund um Klitmøller gibt es viele Möglichkeiten für lange Spaziergänge und Radtouren. Im Aktivitätsraum des Ferienhauses gibt es ein Laufband, Heimtrainer und Tischtennis und Dart.
Die Einrichtung des Hauses macht es besonders für mehrere Familien und Paare geeignet, die einen gemeinsam Urlaub in dieser wunderbaren Umgebung verbringen möchten – ein Urlaub mit schönen Erinnerungen fürs Leben.
Das Ferienhaus eignet sich für 12 Personen sowie 1 Kleinkind bis zu 3 Jahren. Die Ferienunterkunft hat eine Wohnfläche von 147 m² und wurde 2024 gebaut. Haustiere dürfen nicht mitgebracht werden. Die Ferienunterkunft ist mit 1 energiefreundlichen Luft-Wasser-Wärmepumpe und 1 energiefreundlichen Luft-Luft-Wärmepumpe ausgestattet. Fußbodenheizung in allen Räumen. Die Ferienunterkunft ist mit Waschmaschine ausgestattet. Wäschetrockner. Tiefkühlmöglichkeit mit 140 Liter Nutzinhalt. Für die jüngsten Feriengäste ist 1 Kinderhochstuhl vorhanden.
DraußenDie Ferienunterkunft liegt auf einem 1341 m² großen Dünengrundstück. Die Entfernung zum Meer beträgt 650 m. Die nächste Einkaufsmöglichkeit liegt 800 m entfernt. In einem Abstand von 3000 m gibt es einen Golfplatz. Es steht ein 100 m² Terrassenareal zur Verfügung. Außerdem gibt es 20 m² überdachte Terrasse. Schaukel. Sandkasten.Wippe. Außendusche. Es steht ein Grill zur Verfügung. Es ist ein Ladestecker für Elektroautos installiert. Ladestecker Typ 2. Mit einer Ladeleistung von 11 kW. Parkplatz auf dem Grundstück.
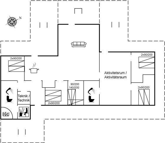
HobbyraumHobbyraum mit: Tischtennis. Dart. Laufband. Heimtrainer.
SchlafverhältnisseDie Schlafplätze verteilen sich auf 5 Schlafräume. 8 Schlafplätze in Einzelbetten. 3 Schlafplätze in Etagenbetten. 2 Schlafplätze auf Matratzen. 2 von diesen Schlafplätzen befinden sich im offenen Obergeschoss. Ferner steht ein Kinderbett zur Verfügung.
KücheDie Küche ist mit amerikanischem Kühlschrank ausgestattet. Außerdem gibt es 4 Induktions-Kochzonen, Umluftofen, kombinierter Miniofen und Mikrowelle sowie Geschirrspüler.
WC und BadEs gibt 2 Badezimmer mit Duschnische und 2 Toiletten. Fußbodenheizung in 2 Badezimmern. Es steht eine Sauna zur Verfügung in der Sie sich so richtig entspannen können.
WhirlpoolEntspannen Sie sich im Innen-Durchlauf-Whirlpool für 2 Personen.
MultimedienIn der Ferienunterkunft gibt es 1 Fernseher mit Smart-TV. Radio. Mindestens 4 dänische Fernsehsender. 1-3 schwedische Fernsehsender. 1-3 norwegische Fernsehsender. 1-3 deutsche Fernsehsender. Es steht kabellose Internetverbindung zur Verfügung.
































