290 m² Ferienhaus ∙ 7 Schlafzimmer ∙ 15 Gäste
Ferienhaus in Tranekær
Über diese Unterkunft
Ein großes und geräumiges Haus im naturschönen Norden von Langeland – mit einem herrlichen, großen und südlich ausgerichteten Garten.
Hier hast du jede Menge Platz – sowohl drinnen als auch draußen.
Das Haus bietet neben Schlafzimmern, Küche und Badezimmern auch ein großes, schönes Wohnzimmer und einen separaten Aktivitätsraum an. Im großen Garten kannst du verschiedenen Outdoor-Aktivitäten nachgehen, es gibt eine große Terrasse mit Markise und einen äußerst gemütlichen Innenhof. Hier ist reichlich Platz für die große Familie!
Das Haus ist Teil einer größeren Landwirtschaft, aber das gesamte Haus, der Garten und die umliegenden Flächen sind durch z.?B. Zäune vom Rest des Grundstücks abgegrenzt, sodass du alles ganz für dich hast und nicht von anderen gestört wirst! Auf dem Grundstück gibt es keine Tierhaltung, sodass du in völliger Ruhe entspannen kannst.
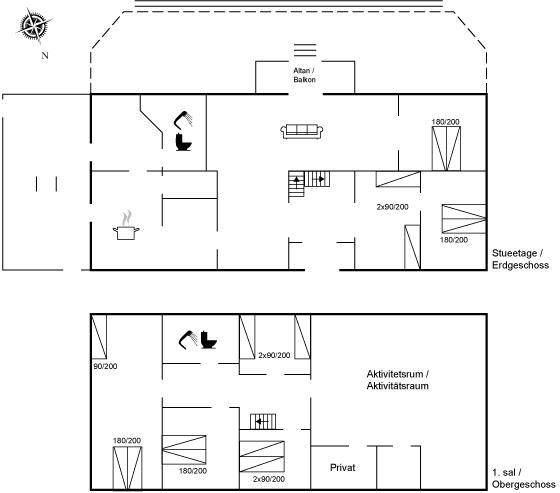
Beachte bitte, dass eines der Schlafzimmer im Erdgeschoss ein Durchgangszimmer zum hinteren Schlafzimmer ist und dass es nur zwei Badezimmer gibt – eines davon mit Badewanne.
Dieser ehemalige Bauernhof eignet sich für 15 Personen sowie 1 Kleinkind bis zu 3 Jahren. Die Ferienunterkunft hat eine Wohnfläche von 290 m², ist 2-stöckig, und wurde 1907 gebaut. 1998 wurde die Ferienunterkunft renoviert. Es ist erlaubt 2 Haustiere mitzubringen. Die Ferienunterkunft ist mit einer energiefreundlichen Luft-Luft-Wärmepumpe ausgestattet. Die Ferienunterkunft ist mit Waschmaschine ausgestattet. Wäschetrockner. Tiefkühlmöglichkeit mit 100 Liter Nutzinhalt. Es gibt außerdem einen Kaminofen. Für die jüngsten Feriengäste ist 1 Kinderhochstuhl vorhanden.
DraußenDie Ferienunterkunft liegt auf einem 2200 m² großen Gartengrundstück. Die Entfernung zum Meer beträgt 850 m. Es gibt einen Badesteg in der Nähe. Die nächste Einkaufsmöglichkeit liegt 3400 m entfernt. Es steht ein offenes Terrassenareal zur Verfügung. Schaukel. Fußballtor.Lagerfeuerstelle. Es steht ein Grill zur Verfügung. Parkplatz auf dem Grundstück.
HobbyraumHobbyraum mit: Tischtennis. Dart. Tischfußball.
SchlafverhältnisseDie Schlafplätze verteilen sich auf 7 Schlafräume. 8 Schlafplätze in Doppelbetten. 7 Schlafplätze in Einzelbetten. Ferner steht ein Kinderbett zur Verfügung.
KücheDie Küche ist mit Kühlschrank ausgestattet. Außerdem gibt es 4 Induktions-Kochzonen, Umluftofen, Mikrowelle sowie Geschirrspüler.
WC und BadEs gibt 2 Badezimmer mit Fußbodenheizung; 1 mit Duschnische und 1 mit Badewanne.
MultimedienIn der Ferienunterkunft gibt es 2 Fernseher. Radio. Mindestens 4 dänische Fernsehsender. Mindestens 4 deutsche Fernsehsender. Es steht kabellose Internetverbindung zur Verfügung.








































