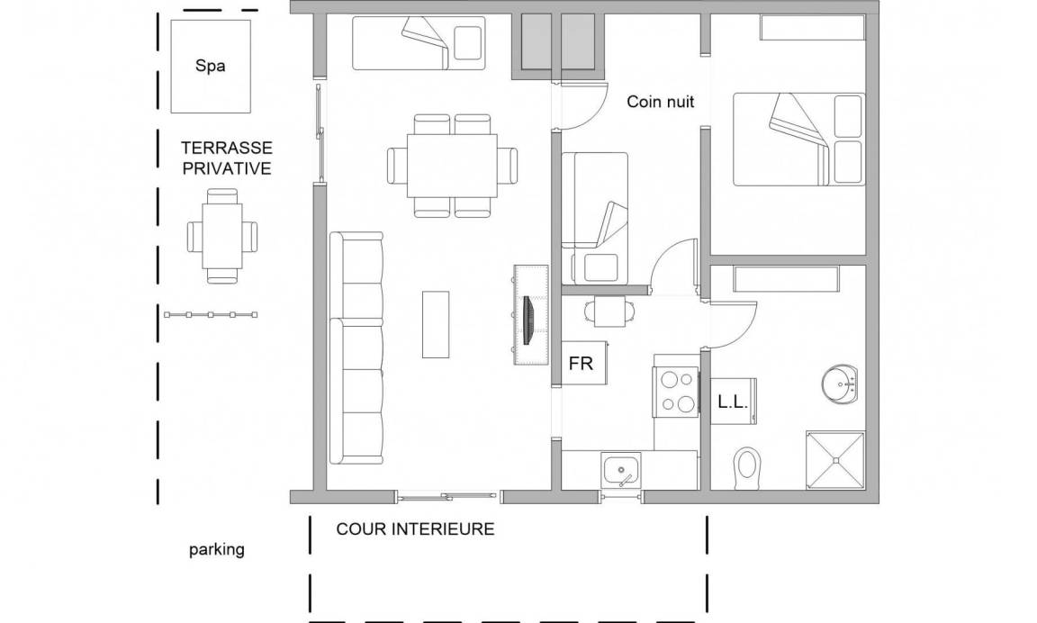
61 m² Gîte ∙ 4 Gäste
Gîte in Trans-en-Provence
4 Gäste1 Bad61 m²
Räume & Aufteilung
1 Badezimmer
1 Küche
61 m² Wohnfläche
4 max. Gäste
Schlafmöglichkeiten
Schlafzimmer 1
x x
Schlafzimmer 2
Was diese Unterkunft bietet
WLAN
Parkplatz
Küche
TV / Fernseher
Waschmaschine
Balkon / Terrasse
Garten
Sauna
dishwasher
terrace



























