52 m² Gîte ∙ 1 Schlafzimmer ∙ 4 Gäste
Gîte in Trigance
Über diese Unterkunft
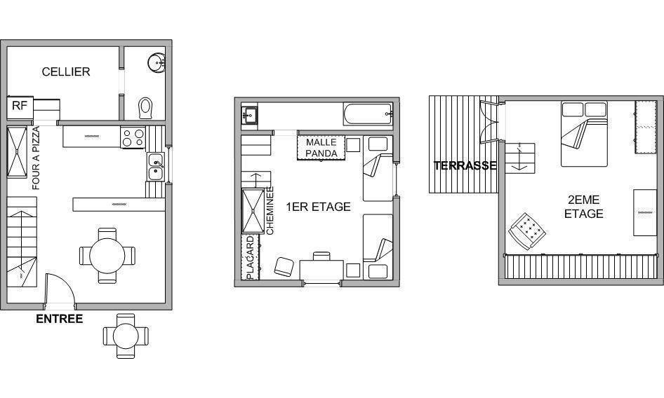
Auf einem herrlichen Hochplateau gelegen, finden Sie Frieden und Ruhe, Natur. Sie können zu Fuß rund um den Hof begleitet die Loulou unser Hund und Ninon zu erfüllen, der Esel und ihre drei Freunde-Ziegen, die frei auf 80 Hektar Land sind zu Fuß. Ehemaliger Schafstall geschmackvoll umgebaut und klassifiziert GÎTE-PANDA, wo Sie eine Lehre-Stamm (Bücher, Fernglas, Lagepläne) entdecken können. Terrasse und Garten geschlossen. Eigentümer, die vor Ort leben werden immer zur Erkundung der Region zur Verfügung.
Räume & Aufteilung
Schlafmöglichkeiten
Schlafzimmer 1
Schlafzimmer 2
Schlafzimmer 3
Schlafzimmer 4
Was diese Unterkunft bietet
Bewertungen
„Excellent séjour en pleine nature dans un gîte atypique et confortableMaggy nous a réservé un accueil chaleureux et nous a donné de précieux conseils sur la région, qui du reste est magnifique Nous reviendrons avec plaisir“
„Le gîte est localisé sur un site superbe: Loin de l'agitation des Gorges du Verdon, toutes proches, on prend plaisir à redécouvrir le silence qu'offre la pleine nature!Accueil chaleureux de la propriétaire Maguy et de Milou son chien. Possibilité de faire des randonnées à la demi-journée en partant depuis le gîte vers le pont de l'Artuby ou pour descendre à Trigance.“
„Superbe séjour, après avoir emprunté un petit chemin pittoresque pour arriver au gîte, nous sommes accueillis par Maggy et le chien Milou. Un petite hameau ou le gîte bien équipé, fonctionnel malgré pas mal de marché est agréable et calme. Une propriétaire attentionné et serviable. Au village trigance, on doit s'arrêter " au piccolo" bar, brasserie accueillant et une cuisine simple et familiale. Un très bon séjour ou je vous recommande ce gîte de "Maggy"ou vous ne serez pas déçu. Au plaisir d'y retourner.“
„Si vous recherchez un coin 100 % nature retiré avec néanmoins de jolis villages à quelques KM, c'est là qu'il faut aller. La propriétaire, Maguy est très accuillante et à l'écoute de vos envies, son chien, Milou viendra vous dire bonjour tous les matins pour votre dose de vitamines pour la journée. De jolies balades et randos et les gorges du Verdon tout près. Rabah“
„Dans un site magnifique et isolé, le gîte offre tout le confort au sein d'une bâtisse ancienne dont le charme a été préservé. L'accueil des propriétaires est particulièrement agréable.“
„Endroit magnifique, isolé et calme à destiner aux amoureux de nature sauvage. Le gite est tout proche des gorges du Verdon, bien équipé, très agréable. Accueil très gentil des propriétaires. La seule chose à signaler est la présence de nombreuses marches dans le gite pour ceux que ça pourrait gêner. Excellent séjour“
„Situé sur la route des crêtes versant Sud du Verdon, à l'écart de toute agitation touristique, les amateurs de tranquillité et de nature sauvage et rocailleuse seront comblés. Situé sur 2 étages: RC (cuisine), 1er étage (chambre, coin télé) et 2ème étage (chambre en mezzanine donnant sur petite terrasse adossée au rocher), le tout en enfilade, le logement a un petit air de Mykonos. Jardinet d'entrée avenant, visite d'animaux affectueux, l'accueil est simple, car les occupations ne manquent pas (entretien de la grande Commanderie et nombreuses visites). Bref, on a adoré cet endroit reculé et reposant, comme coupé du monde. Un seul conseil: Faites vos grandes courses avant de venir, même si vous trouverez une très bonne boulangerie à Trigance et une excellente chèvrerie en chemin. Le retour à la civilisation est dur après cela !“

















