178 m² Ferienhaus ∙ 4 Schlafzimmer ∙ 10 Gäste
Ferienhaus in Vejby
Über diese Unterkunft
Dieses neue und einzigartige Ferienhaus in Rågeleje bietet all den Luxus, den man sich für einen unvergesslichen Urlaub nur wünschen kann. Das Ferienhaus ist von dem preisgekrönten Architekten MAA Søren Rasmussen entworfen und bisher wurde nur dieses eine Ferienhaus seiner Art gebaut.
Das Haus liegt in einem kleinen Weg in ruhiger und ungestörter Umgebung, nur 275 m vom Strand von Rågeleje Strand mit den charakteristischen gestreiften Badehäusern und einem tollen Sandstrand entfernt.
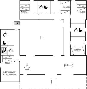
Das Haus besteht aus vier Seiten, in deren Mitte ein fantastischer Innenhof liegt, in dem man immer ein windgeschütztes Plätzchen findet. Das Haus wurde aus hochwertigen Materialien erbaut und besticht mit reichlich Luxus: Das Haus hat überall Fußbodenheizung, die über eine energiesparende Luft-Wasser-Wärmepumpe betrieben wird, eine Sauna und ist dank der großen Fensterfronten und der hohen Decken lichtdurchflutet und großzügig. Das gesamte Haus ist modern und stilvoll eingerichtet.
Es gibt einen separaten Aktivitätsraum und draußen die Möglichkeit, Tischtennis zu spielen. Hier gibt es reichlich Gelegenheit, die frische Luft auf den schönen Terrassen mit Außendusche zu genießen. Die Außendusche kann von der KW 13 bis zur KW 43 genutzt werden. Das Grundstück ist eingezäunt, sodass sich auch kleine Kinder sicher auf dem Areal bewegen können. Es ist ein Ladestecker für Elektroautos installiert (Typ 2) miit einer Ladeleistung von 11 kW.
Der Mittelpunkt des Hauses ist die offene Wohnküche. Hier können alle zusammenkommen und Zeit miteinander verbringen. Es gibt 4 schöne Schlafzimmer mit jeweils 2 Schlafplätzen. 2 weitere Schlafplätze befinden sich im Aktivitätsraum und 2 im offenen Obergeschoss. Das Haus verfügt über 3 Badezimmer mit Fußbodenheizung und Duschnische.
Es steht ein Carport zur Verfügung.
Das Haus liegt im beschaulichen Rågeleje, einer der historischen Badeorte an der Nordküste. Hier gibt es einen herrlichen Badestrand und gute Bedingungen für Kite- und Windsurfer, die sich bei Wind eifrig auf den Wellen tummeln. Die Gegend wartet mit der malerischen Landschaft Heatherhill auf, Lokale und Einkaufsmöglichkeit liegen beide in Laufweite. Auch die anderen schönen Badeorte an der Nordküste wie Tisvildeleje, Gilleleje und Hornbæk sind einen Besuch wert. Oder man macht einen Ausflug nach Kopenhagen, um die vielen Sehenswürdigkeiten und Attraktionen der Hauptstadt zu erleben.































