78 m² Ferienhaus ∙ 2 Schlafzimmer ∙ 4 Gäste
Ferienhaus in Vejers Strand
Über diese Unterkunft
Hier habt ihr das, was manch einer ein richtiges Ferienhaus nennen würde. Kein neumodernes Exemplar, aber dennoch topgepflegt. Wenn ihr ein supergemütliches Ferienhaus haben möchtet, ist dieses Haus perfekt, um den Rahmen für euren Urlaub in Dänemark zu bilden.
Das Ferienhaus eignet sich für 4 Personen. Die Ferienunterkunft hat eine Wohnfläche von 78 m² und wurde 1980 gebaut. 2009 wurde die Ferienunterkunft teilweise renoviert. Es ist erlaubt 1 Haustier mitzubringen. Tiefkühlmöglichkeit mit 15 Liter Nutzinhalt. Es gibt außerdem einen Kaminofen.
DraußenDie Ferienunterkunft liegt auf einem 1500 m² großen Naturgrundstück. Die Entfernung zum Meer beträgt 1200 m. Die nächste Einkaufsmöglichkeit liegt 400 m entfernt. Außerdem gibt es überdachte Terrasse. Es steht ein Grill zur Verfügung. Es steht ein Carport zur Verfügung. Parkplatz auf dem Grundstück.
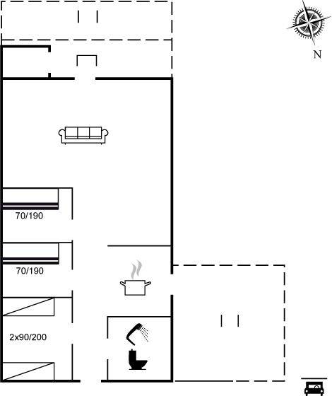
SchlafverhältnisseDie Schlafplätze verteilen sich auf 2 Schlafräume. 2 Schlafplätze in Einzelbetten. 2 Schlafplätze in einem Etagenbett.
KücheDie Küche ist mit Kühlschrank ausgestattet. Außerdem gibt es 4 elektrische Kochplatten, Umluftofen, Mikrowelle.
WC und BadEs gibt 1 Badezimmer mit Dusche und 1 Toilette.
MultimedienIn der Ferienunterkunft gibt es einen Fernseher.1 Chromecast. Radio. Keine Fernsehsender - nur Streaming. Es steht kabellose Internetverbindung zur Verfügung.
























