71 m² Ferienhaus ∙ 3 Schlafzimmer ∙ 6 Gäste
Ferienhaus in Vejers Strand
Über diese Unterkunft
Schönes helles Haus auf einem großen Grundstück in Strandnähe. Meerblick von seiner eigenen Düne. Gute Einrichtung mit Holzböden im ganzen Haus.
Es besteht die Möglichkeit, die Fitness-Einrichtungen im Blåvandshuk Idrætscenter in Vejers, zu nutzen.
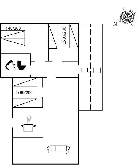
Das Ferienhaus eignet sich für 6 Personen. Die Ferienunterkunft hat eine Wohnfläche von 71 m² und wurde 1972 gebaut. 2008 wurde die Ferienunterkunft teilweise renoviert. Es ist erlaubt 1 Haustier mitzubringen. Die Ferienunterkunft ist mit Waschmaschine ausgestattet. Wäschetrockner. Tiefkühlmöglichkeit mit 10 Liter Nutzinhalt. Es gibt außerdem einen Kaminofen.
DraußenDie Ferienunterkunft liegt auf einem 1968 m² großen Dünengrundstück. Die Entfernung zum Meer beträgt 100 m. Die nächste Einkaufsmöglichkeit liegt 150 m entfernt. Es steht ein 7 m² Terrassenareal zur Verfügung. Außerdem gibt es 7 m² überdachte Terrasse. Parkplatz auf dem Grundstück.
SchlafverhältnisseDie Schlafplätze verteilen sich auf 3 Schlafräume. 2 Schlafplätze in einem Doppelbett. 4 Schlafplätze in Einzelbetten.
KücheDie Küche ist mit Kühlschrank ausgestattet. Außerdem gibt es 4 Keramik-Kochfelder, Backofen sowie Geschirrspüler.
WC und BadEs gibt 1 Badezimmer mit Duschnische und 1 Toilette.. Fußbodenheizung in 1 Badezimmer.
MultimedienIn der Ferienunterkunft gibt es einen Fernseher. DVD-Player. Radio. CD-Player. Es steht kabellose Internetverbindung zur Verfügung.
Räume & Aufteilung
Schlafmöglichkeiten
Schlafzimmer 1
Schlafzimmer 2
Was diese Unterkunft bietet
Bewertungen
„Cleanliness: Ich bezweifele, dass das Ferienhaus überhaupt gereinigt wurde. Staub, Dreck, Hundehaare überall.“
„Advice to other guests: Slap af og nyde kronhjort som kommer forbi dagligt mellem 20 og 22 helt til p pladsen The vacation at the holiday home: Vi skulle selv søge efter internet kode Skulle finde ud af tilslutte strøm til varmtvandsbeholder Manglede flere info om område brochure“
„Prior to the vacation at the holiday home: Ich habe leider die falsche Zahl gewählt. Es sollte eher eine 1 sein. The vacation at the holiday home: Wir waren zufrieden“
„Advice to other guests: Türen abschliessen ist ungewohnt: Klinke mus zum schliessen nach oben gehalten werden, dann lässt sich der Schlüssel drehen. Prior to the vacation at the holiday home: Bitte den Mountaibikepark auch erwähnen! Haben wir erstr zwei Tage vor Abreise entdeckt. Mehr Infos über Sperrungen bzw. mögliches Betreten / Befahren des Militärgebiets wären hilfreich The vacation at the holiday home: Ein Liegestuhl war defekt, direkt damit auf den Boden geplumpst, den anderen gar nicht mehr ausprobiert. Sonnenschirm aufziehseil defekt, haben wir während des Aufenthalts augebessert. Wohnzimmertisch hat Kinderkritzeleien The local office: Sehr freundlich an Samstagen in der Hochsaison könnte es abends etwas länger als 1800 geöffnet sein. Cleanliness: Reinigung: Fenster und innere Glaswand waren nicht geputz, z. T. Fingertapser. Die Mittelspalte vom Ausziehtisch war seit langem nicht geputz, extrem verdreckt. Wohnzimmertisch hat Kinderkritzeleien The holiday home itself: Sehr schöne Lage zum Strand und Restaurants / Supermarkt. Grundstück sehr großzügig. Haus groß genug für 6 Personen - Betten sehr weich und schmal.“
„Advice to other guests: Schönes Ferienhaus und Ausstattung, leider zu wenig Stauraum in der Küche für Lebensmittel.“
„Advice to other guests: Wir haben uns im FH Rosenvej 13 / 25-5160 sehr wohlgefühlt, auch im Ort Vejers-Strand und werden evt. auch wieder buchen, sofern es Corona zuläßt ! Einziges Minus am Haus - die Überdachung könnte etwas größer sein, damit der Tisch mehr überdacht ist, um auch mal bei leichten Regen draußen sitzen zu können. Ein paar mehr deutsche Fernsehkanäle wären auch nicht schlecht ! Ansonsten im großen und ganzen, alles gut, Wettergut von allen dabei - wir waren zufrieden und erholt ! Mit freundlichen Grüßen und bis bald - Uschi und Bernd Riedel vom Balkon des Erzgebirges Prior to the vacation at the holiday home: Die Corona - Krise ! Die mehrmalige Aufforderung durch Sonne & Strand, die zweite Zahlung Restzahlung zu tätigen, obwohl bis 15.6.2020 nicht klar wahr ob wir nach DK auf Grund der Grenzschließung fahren dürfen. Diese Handlungsweise hat uns viele Tage voher sehr verärgert und werden bei erneuter Buchung entsprechend handeln bzw. uns einen anderen FH-Anbieter suchen. The vacation at the holiday home: Alles gut !“
„Cleanliness: Es gab Spinnenweben und Staub. Man sah, dass einfach nur oberflächlich gereinigt wurde. Das betrifft auch die Zimmertüren und Küchentüren. Es gab auch dort Fingerabdrücke etc.... einfach nicht angenehm. Im Schrank des einen Zimmers befanden sich Haare. The holiday home itself: Es ist im Haus so einiges in die Jahre gekommen. Wir waren nicht das erste Mal in diesem Haus und haben schon nach unserem ersten Besuch darauf hingewiesen, dass z. B. der Mülleimer im Bad ersetzt werden dürfte, da er nicht einwandfrei funktioniert. Genauso ist die Matratze in dem Doppelbett so weich, dass man nicht! zu zweit darin schlafen kann. Der Duschvorhang hat Schimmel am unteren Ende....“
„Advice to other guests: Das Haus ist gemütlich eingerichtet und verfügt über einen schönen Garten. Es liegt quasi direkt hinter den Dünen.“
„Advice to other guests: Man kann die Liegestühle sehr gut benutzen, um die Sterne zu beobachten.“
„Advice to other guests: Wir waren rundum sehr sehr zufrieden The local office: Haben wir nicht während des Aufenthaltes in Anspruch nehmen müssen. Bei telefonischen Anfragen von zu Hause aus wurden wir sehr hilfreich und freundlich beraten. Departure and follow up: Wir waren sehr zufrieden. Empfehlen gerne weiter“
„The vacation at the holiday home: Sehr gute Lage, zu Fuß in 3 Minuten am Strand. Ferienhaus insgesamt sehr hell und freundlich- Leider kaum Schattenmöglichkeit auf dem Grundstück.. Fast uneinsehbares Grundstück, oft Rotwild direkt vor Augen. Im Wohnzimmer etwas vollgestellt mit älteren Sesseln, neues, bequemes Eck-Sofa u. neuere Esszimmerstühle. Im Haus, auch in 1 SZ, roch es etwas "muffig" nach älterem Holz, vermutlich die Holzeinlegeplatte für den Esszimmertisch. The holiday home itself: S. vorige Seite“























