120 m² Ferienwohnung ∙ 4 Schlafzimmer ∙ 10 Gäste
Ferienwohnung in Villard-sur-Doron
10 Gäste4 Schlafzimmer2 Bad120 m²
Über diese Unterkunft
Die Résidence Les Alpages de Bisanne G ist eine Luxusresidenz mit Swimmingpool, überdachtem Parkplatz und Aufzügen und befindet sich in Bisanne 1500, 6 km von Les Saisies entfernt. Panoramablick auf die umliegenden Berge. Ein Minimarkt und ein Restaurant befinden sich in der Nähe.
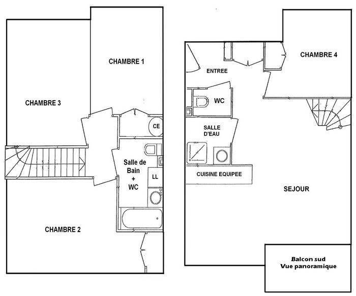
Fläche von ungefähr 120 m². Einige als Maisonette. 3te Etage. Orientierung : Süd. Niveau 0 : Wohnzimmer. Schlafzimmer mit Doppelbett (140). Kochnische mit , Raclettegerät, Wasserkocher, Kaffeemaschine (italienne), Backofen, Geschirrspülmaschine, Mikrowellenherd. Badezimmer mit Dusche. separates WC. Niveau 1 : Schlafzimmer mit 2 zwei Einzelbetten (90). Schlafzimmer mit Doppelbett (160). Schlafzimmer mit Klappschlafcouch, 2 zwei Einzelbetten (90). Badezimmer mit Badewanne, WC.
Mietbedingung: der Hauptmieter muss mindestens 18 Jahre alt sein
Fläche von ungefähr 120 m². Einige als Maisonette. 3te Etage. Orientierung : Süd. Niveau 0 : Wohnzimmer. Schlafzimmer mit Doppelbett (140). Kochnische mit , Raclettegerät, Wasserkocher, Kaffeemaschine (italienne), Backofen, Geschirrspülmaschine, Mikrowellenherd. Badezimmer mit Dusche. separates WC. Niveau 1 : Schlafzimmer mit 2 zwei Einzelbetten (90). Schlafzimmer mit Doppelbett (160). Schlafzimmer mit Klappschlafcouch, 2 zwei Einzelbetten (90). Badezimmer mit Badewanne, WC.
Mietbedingung: der Hauptmieter muss mindestens 18 Jahre alt sein
Räume & Aufteilung
4 Schlafzimmer
2 Badezimmer
1 Küche
120 m² Wohnfläche
10 max. Gäste
Schlafmöglichkeiten
Schlafzimmer 1
x x x
Schlafzimmer 2
Was diese Unterkunft bietet
Parkplatz
Küche
dishwasher
microwave
no_dogs
smoking_not_allowed
oven
children_allowed
coffee_machine
heating





















